今週末モデルハウス見学会開催中!「蒔田」駅徒歩12分 新築一戸建て 浴室乾燥機有

物件種別

新築一戸建て

価格

4,480万円

所在地

横浜市南区 堀ノ内町2丁目 216-10

交通

ブルーライン「蒔田」駅 徒歩 12 分

根岸線「桜木町」駅 バス停「蒔田駅前」まで 徒歩 12 分 バス利用 20分

土地面積

55.00㎡

建物面積

94.76㎡

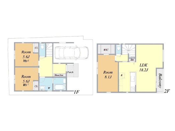
間取り

2SLDK

前回情報更新日 2025.11.06 | 次回情報更新予定日 2025.11.20

耐震に配慮された建物

1 | 5

この物件のココがオススメ!

BL「蒔田」駅から徒歩12分。通勤・通学に便利な立地。プライバシーに配慮した2階リビング、浴室乾燥機他設備充実のお住まいです。

  • システムキッチン
  • 対面キッチン
  • L型キッチン
  • ユニットバス
  • 浴室乾燥機

お気軽にどうぞ!

お気に入りに追加済み

所在地マップ

間取り

お気軽にどうぞ!

お気に入りに追加済み

ローンシミュレーション

頭金・金利の場合

この物件の月々のお支払額

100,480

ボーナス時(年2回)お支払額

150,000

安全性をチェック! 年収に対する返済比率

- %

※会員登録し、詳細情報を記入されますと、全ての物件で自動的に金額が表示され、大変便利です。

※まだ会員登録をされていない方は、下記チェック欄をご記入ください。

※上記計算は物件価格 4,480万円+諸経費 8%込みの金額による結果となります。

※返済金額はあくまでも目安です。

お客様の条件からシミュレーションするには?

会員登録してローン情報を入力しておくと全ての物件に対してローンシミュレーションを表示できます。

周辺環境

蒔田見晴らし公園(蒔田見晴らし公園まで500m)

公園

周辺環境:蒔田見晴らし公園(蒔田見晴らし公園まで500m)(500m)

京急ストア磯子丸山店(京急ストア磯子丸山店まで850m)

スーパー

周辺環境:京急ストア磯子丸山店(京急ストア磯子丸山店まで850m)(850m)

横浜市立蒔田小学校750

小学校

周辺環境:横浜市立蒔田小学校750(m)

横浜市立蒔田中学校

中学校

周辺環境:横浜市立蒔田中学校(1000m)

睦町保育園

幼稚園・保育園

周辺環境:睦町保育園(750m)

FUJI根岸橋店

スーパー

周辺環境:FUJI根岸橋店(1200m)

横浜英和幼稚園

幼稚園・保育園

周辺環境:横浜英和幼稚園(700m)

スーパー横濱屋蒔田店

スーパー

周辺環境:スーパー横濱屋蒔田店(1000m)

門前公園

公園

周辺環境:門前公園(500m)

お気軽にどうぞ!

お気に入りに追加済み

詳細情報

学区

蒔田小学校

蒔田中学校

用途地域

第一種住居

地目

宅地

建ぺい率

60%

容積率

160%

駐車場

有り ビルトイン車庫 駐車場面積:11.13㎡

接道

南東 4.0m

権利

所有権

私道面積

有 2.22m²

セットバック

無し

建物構造

木造

建物階数

3階

築年月

2025/12

入居日

2026/01

建築確認番号

第R07SHC103502号

都市計画

市街化区域

取引態様

仲介

物件番号

46992

設備

都市ガス、公共下水、私設水道、ビルトインガレージ、緑豊かな住宅地、閑静な住宅地、南側道路面す、2沿線以上利用可、小学校徒歩10分以内、対面キッチン、都市ガス、システムキッチン、対面キッチン、L型キッチン、浄水器、ユニットバス、浴室乾燥機、ウォシュレット、トイレ2ヶ所、浴室に窓、バルコニー、南面バルコニー、3階建以上、LDK15畳以上、フローリング、リビング階段、クローゼット、収納、床下収納、下駄箱、シャンプドレッサー付き、フラット35Sに対応、モニタ付きインターフォン、24時間換気システム、建物10年保証

こだわり

道路狭い(4メートル未満)、耐震に配慮された建物、浴室換気乾燥暖房機、大人の二人暮らし、リビングイン階段、LDKは2階に、LDK15帖以上、対面キッチン、小学校10分以内、保育園10分以内、幼稚園10分以内、公園10分以内、都市ガス

特記事項

宅地造成工事規制区域:有/高度地区:有/準防火地域:有/日影制限:有/その他制限事項:建築基準法第22条区域 私道通行承諾有 建物面積に車庫11.13平米含 。

備考

BL「蒔田」駅から徒歩12分。通勤・通学に便利な立地。プライバシーに配慮した2階リビング、浴室乾燥機他設備充実のお住まいです。

この一戸建てを見ている人におすすめの物件

お気軽にどうぞ!

お気に入りに追加済み

loading...