今週末モデルハウス見学会開催中!「金沢文庫」駅利用 新築一戸建て カースペース2台

物件種別

新築一戸建て

価格

6,680万円

所在地

横浜市金沢区 釜利谷西4丁目 12ー26

交通

京浜急行本線「金沢文庫」駅 バス停「中学校前」まで 徒歩 3 分 バス利用 11分

「」駅

土地面積

254.94㎡

建物面積

109.72㎡

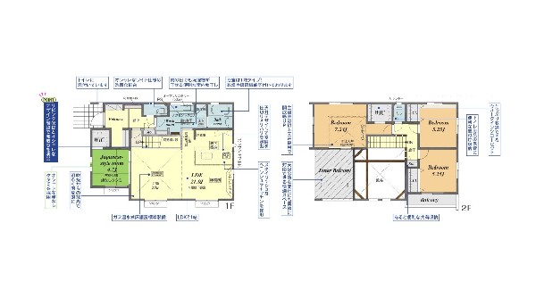
間取り

4LDK

前回情報更新日 2026.03.19 | 次回情報更新予定日 2026.04.02

長期優良住宅

カースペース2台

道路広々(5m以上)

この物件のココがオススメ!

京急本線「金沢文庫」駅利用。長期優良住宅。4LDK。カースペース2台駐車可能。アイランドキッチン採用。全居室収納有。

  • システムキッチン
  • ガス3口
  • 対面キッチン
  • ユニットバス
  • 追い焚き

お気軽にどうぞ!

お気に入りに追加済み

所在地マップ

間取り

お気軽にどうぞ!

お気に入りに追加済み

ローンシミュレーション

頭金・金利の場合

この物件の月々のお支払額

162,105

ボーナス時(年2回)お支払額

150,000

安全性をチェック! 年収に対する返済比率

- %

※会員登録し、詳細情報を記入されますと、全ての物件で自動的に金額が表示され、大変便利です。

※まだ会員登録をされていない方は、下記チェック欄をご記入ください。

※上記計算は物件価格 6,680万円+諸経費 8%込みの金額による結果となります。

※返済金額はあくまでも目安です。

お客様の条件からシミュレーションするには?

会員登録してローン情報を入力しておくと全ての物件に対してローンシミュレーションを表示できます。

お気軽にどうぞ!

お気に入りに追加済み

詳細情報

学区

西金沢義務教育学校

西金沢義務教育学校

用途地域

第一種低層住居専用

地目

宅地

建ぺい率

30%

容積率

60%

駐車場

有り カースペース

接道

西 6.5m

権利

所有権

私道面積

無し

セットバック

無し

建物構造

木造

建物階数

2階

築年月

2026/03

入居日

2026/04

建築確認番号

第R07SHC115883号

都市計画

市街化区域

取引態様

仲介

物件番号

47732

設備

都市ガス、公営水道、公共下水、駐車場2台以上、緑豊かな住宅地、閑静な住宅地、前道6m以上、2沿線以上利用可、小学校徒歩10分以内、中学校徒歩10分以内、公園5分以内、対面キッチン、都市ガス、システムキッチン、ガス3口、対面キッチン、アイランドキッチン、ユニットバス、追い焚き、ウォシュレット、トイレ2ヶ所、浴室に窓、暖房便座、バルコニー、南面バルコニー、2階建、LDK18畳以上、採光2面、全室南向き、フローリング、クローゼット、収納、床下収納、下駄箱、全居室収納、シャンプドレッサー付き、フラット35Sに対応、モニタ付きインターフォン、24時間換気システム、建物10年保証

こだわり

長期優良住宅、大人の二人暮らし、自然を感じる暮らし、LDKは1階に、2階建て住宅限定、LDK18帖以上、対面キッチン、小学校10分以内、大規模公園10分以内、幼稚園10分以内、公園10分以内、都市ガス、カースペース2台、道路広々(5m以上)

特記事項

建築協定:有/壁面後退:有/宅地造成工事規制区域:有/高度地区:有/風致地区:有/日影制限:有/敷地面積最低限度:有/高さ限度:有/その他制限事項:建築基準法第22条区域。

備考

京急本線「金沢文庫」駅利用。長期優良住宅。4LDK。カースペース2台駐車可能。アイランドキッチン採用。全居室収納有。

この一戸建てを見ている人におすすめの物件

お気軽にどうぞ!

お気に入りに追加済み

loading...