今週末モデルハウス見学会開催中!「下永谷」駅徒歩15分 新築一戸建て 太陽光発電システム搭載

物件種別

新築一戸建て

価格

6,498万円

所在地

横浜市戸塚区 南舞岡1丁目 35-19

交通

ブルーライン「下永谷」駅 徒歩 15 分

東海道本線「戸塚」駅 バス停「日限山小学校入口」まで 徒歩 3 分 バス利用 10分

土地面積

236.87㎡

建物面積

102.26㎡

間取り

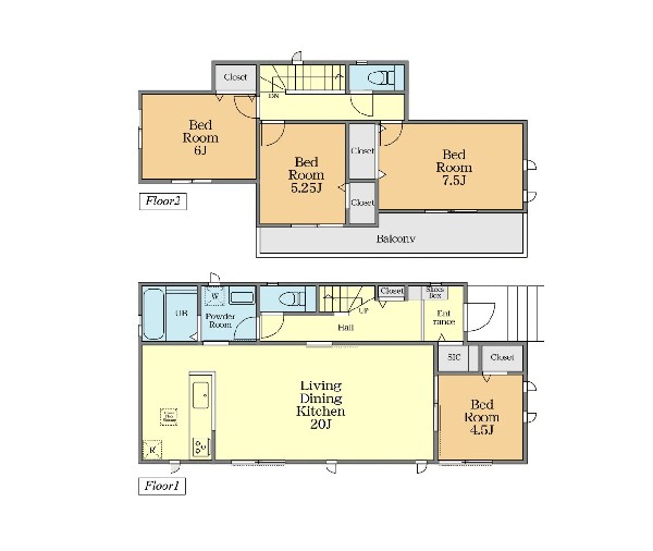
4LDK

前回情報更新日 2026.01.29 | 次回情報更新予定日 2026.02.12

耐震に配慮された建物

LDK20帖以上

床暖房

道路広々(5m以上)

この物件のココがオススメ!

地下鉄BL「下永谷」駅徒歩15分。敷地面積広々約71坪。多面採光で通風良好。LDKは会話が弾む対面キッチン。床暖房、太陽光発電システム他、設備充実。

  • システムキッチン
  • ガス3口
  • 対面キッチン
  • 食器洗い機付き
  • ユニットバス

お気軽にどうぞ!

お気に入りに追加済み

所在地マップ

間取り

お気軽にどうぞ!

お気に入りに追加済み

ローンシミュレーション

頭金・金利の場合

この物件の月々のお支払額

156,996

ボーナス時(年2回)お支払額

150,000

安全性をチェック! 年収に対する返済比率

- %

※会員登録し、詳細情報を記入されますと、全ての物件で自動的に金額が表示され、大変便利です。

※まだ会員登録をされていない方は、下記チェック欄をご記入ください。

※上記計算は物件価格 6,498万円+諸経費 8%込みの金額による結果となります。

※返済金額はあくまでも目安です。

お客様の条件からシミュレーションするには?

会員登録してローン情報を入力しておくと全ての物件に対してローンシミュレーションを表示できます。

お気軽にどうぞ!

お気に入りに追加済み

詳細情報

学区

南舞岡小学校

日限山中学校

用途地域

第一種低層住居専用

地目

宅地

建ぺい率

40%

容積率

80%

駐車場

有り カースペース

接道

西 5.0m

権利

所有権

私道面積

無し

セットバック

無し

建物構造

木造

建物階数

2階

築年月

2026/01

入居日

2026/02

建築確認番号

第25UDI1K建00712号

都市計画

市街化区域

取引態様

仲介

物件番号

47664

設備

都市ガス、公営水道、公共下水、緑豊かな住宅地、閑静な住宅地、土地50坪以上、スーパーが近い(10分以内)、小学校徒歩10分以内、公園5分以内、コンビニ5分以内、システムキッチン、ガス3口、対面キッチン、食器洗い機付き、勝手口、I型キッチン、ユニットバス、追い焚き、浴室乾燥機、ウォシュレット、トイレ2ヶ所、浴室に窓、暖房便座、バルコニー、バルコニー2面、南面バルコニー、2階建、LDK20畳以上、太陽光発電システム、採光2面、フローリング、クローゼット、収納、床下収納、下駄箱、全居室収納、シャンプドレッサー付き、フラット35Sに対応、モニタ付きインターフォン、インターフォン、24時間換気システム、太陽光発電システム、対面キッチン、都市ガス、建物10年保証

こだわり

耐震に配慮された建物、床暖房、食器洗い洗浄乾燥機、浴室換気乾燥暖房機、太陽光発電システム、LDKは1階に、2階建て住宅限定、LDK20帖以上、対面キッチン、小学校10分以内、スーパー10分以内、コンビニ10分以内、保育園10分以内、公園10分以内、都市ガス、フラット35利用可、道路広々(5m以上)

特記事項

壁面後退:有/宅地造成工事規制区域:有/高度地区:有/日影制限:有/敷地内段差:有/敷地面積最低限度:有/高さ限度:有/その他制限事項:南舞岡一丁目二丁目住宅地区 建築基準法第22条区域 舞岡地区プラン 傾斜地有 横浜市建築基準条例第3条による制限有 建物建築・再建築の際、深基礎、基礎杭、擁壁の補修・再構築、外壁後退等の対策が必要となる場合があります 建物建築・再建築の際、防護壁の設置、高基礎、外壁後退等の対策が必要となる場合があります 別途太陽光システムの定額利用(IGNITUREソーラーフラットプラン)が必要となり、月額3960円(税込)のサービス料が発生します(契約期間10年)ご利用にはマイページ・クレジットカードの登録が必要となります。サービス利用の為、電力会社は「東京ガス」となります。

備考

地下鉄BL「下永谷」駅徒歩15分。敷地面積広々約71坪。多面採光で通風良好。LDKは会話が弾む対面キッチン。床暖房、太陽光発電システム他、設備充実。

この一戸建てを見ている人におすすめの物件

お気軽にどうぞ!

お気に入りに追加済み

loading...