今週末内覧会開催中!「二俣川」駅徒歩13分 中古一戸建て 全室6帖以上

物件種別

中古一戸建て

価格

2,980万円

所在地

横浜市旭区 本村町 72-8

交通

相模鉄道線「二俣川」駅 徒歩 13 分

相模鉄道線「二俣川」駅 バス停「高地」まで 徒歩 6 分 バス利用 1分

土地面積

123.59㎡

建物面積

101.70㎡

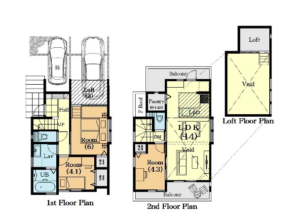
間取り

4LDK

前回情報更新日 2026.01.29 | 次回情報更新予定日 2026.02.12

道路広々(5m以上)

1 | 18

この物件のココがオススメ!

相鉄線「二俣川」駅から徒歩13分。2024年10月リフォーム完了済(システムキッチン・トイレ・ユニットバス交換、フローリング・クロス貼替、ハウスクリーニング他)

  • システムキッチン
  • ガス3口
  • 対面キッチン
  • ユニットバス
  • バルコニー

お気軽にどうぞ!

お気に入りに追加済み

所在地マップ

間取り

お気軽にどうぞ!

お気に入りに追加済み

ローンシミュレーション

頭金・金利の場合

この物件の月々のお支払額

58,463

ボーナス時(年2回)お支払額

150,000

安全性をチェック! 年収に対する返済比率

- %

※会員登録し、詳細情報を記入されますと、全ての物件で自動的に金額が表示され、大変便利です。

※まだ会員登録をされていない方は、下記チェック欄をご記入ください。

※上記計算は物件価格 2,980万円+諸経費 8%込みの金額による結果となります。

※返済金額はあくまでも目安です。

お客様の条件からシミュレーションするには?

会員登録してローン情報を入力しておくと全ての物件に対してローンシミュレーションを表示できます。

周辺環境

四季美台第二公園(四季美台第二公園まで500m)

公園

周辺環境:四季美台第二公園(四季美台第二公園まで500m)(500m)

今川公園(今川公園まで800m)

公園

周辺環境:今川公園(今川公園まで800m)(800m)

ジョイナステラス二俣川

ショッピングセンター

周辺環境:ジョイナステラス二俣川(1400m)

そうてつローゼン二俣川店

スーパー

周辺環境:そうてつローゼン二俣川店(1000m)

西友二俣川店

スーパー

周辺環境:西友二俣川店(1200m)

二俣川幼稚園

幼稚園・保育園

周辺環境:二俣川幼稚園(800m)

横浜四季の森フォレオ

ショッピングセンター

周辺環境:横浜四季の森フォレオ(4300m)

横浜市立二俣川小学校

小学校

周辺環境:横浜市立二俣川小学校(1300m)

横浜市立万騎が原中学校

中学校

周辺環境:横浜市立万騎が原中学校(1800m)

お気軽にどうぞ!

お気に入りに追加済み

詳細情報

学区

二俣川小学校

万騎が原中学校

用途地域

第一種住居

地目

宅地

建ぺい率

60%

容積率

200%

駐車場

無し

接道

北東 10.7m

権利

所有権

私道面積

無し

セットバック

無し

建物構造

軽量鉄骨

建物階数

2階

築年月

1980/09

入居日

相談

都市計画

市街化区域

取引態様

仲介

物件番号

47956

設備

個別LPG、公営水道、公共下水、緑豊かな住宅地、閑静な住宅地、前道6m以上、2沿線以上利用可、対面キッチン、システムキッチン、ガス3口、対面キッチン、I型キッチン、アイランドキッチン、ユニットバス、浴室に窓、バルコニー、ワイドバルコニー、南面バルコニー、リノベーション、2階建、LDK15畳以上、全居室6畳以上、和室、全室2面採光、フローリング、クローゼット、収納、下駄箱、全居室収納、南庭、庭、モニタ付きインターフォン

こだわり

カースペース無し、プロパンガス、敷地延長(旗竿地)、急行電車でスピード通勤、大人の二人暮らし、LDKは1階に、2階建て住宅限定、LDK15帖以上、広々バルコニー、対面キッチン、幼稚園10分以内、公園10分以内、道路広々(5m以上)

特記事項

不整形地:有/宅地造成工事規制区域:有/高度地区:有/準防火地域:有/日影制限:有/その他制限事項:建築基準法第22条区域 横浜市建築基準条例第3条による制限有 ※建物建築・再建築の際、深基礎、基礎杭、擁壁の補修・再構築、外壁後退等の対策が必要となる場合があります 建物建築・再建築の際、防護壁の設置、高基礎、外壁後退等の対策が必要となる場合があります 構造:一部木造。

備考

相鉄線「二俣川」駅から徒歩13分。2024年10月リフォーム完了済(システムキッチン・トイレ・ユニットバス交換、フローリング・クロス貼替、ハウスクリーニング他)

この一戸建てを見ている人におすすめの物件

お気軽にどうぞ!

お気に入りに追加済み

loading...