今週末モデルハウス見学会開催中!「港南台」駅利用 新築一戸建て 南西角地

物件種別

新築一戸建て

価格

6,490万円

所在地

横浜市栄区 桂台南2丁目 4-26

交通

根岸線「港南台」駅 バス停「桂山公園」まで 徒歩 4 分 バス利用 14分

東海道本線「大船」駅 バス停「桂山公園」まで 徒歩 4 分 バス利用 18分

土地面積

226.43㎡

建物面積

99.78㎡

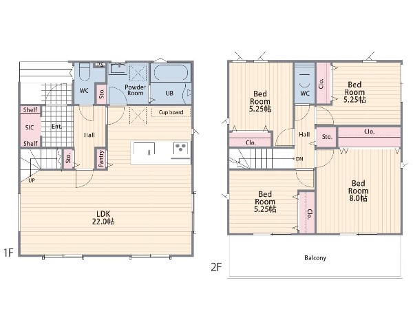
間取り

4LDK

前回情報更新日 2026.01.29 | 次回情報更新予定日 2026.02.12

耐震に配慮された建物

断熱に配慮された建物

カースペース3台以上

角地限定

この物件のココがオススメ!

JR根岸線「港南台」駅利用。緑豊かで閑静な住宅地。角地につき陽当たり良好。4LDKのゆとりの間取り、全居室収納付。食洗機、浴室乾燥機、セカンド洗面、床下収納等設備充実。

  • システムキッチン
  • ガス3口
  • 対面キッチン
  • 食器洗い機付き
  • ユニットバス

お気軽にどうぞ!

お気に入りに追加済み

所在地マップ

間取り

お気軽にどうぞ!

お気に入りに追加済み

ローンシミュレーション

頭金・金利の場合

この物件の月々のお支払額

156,788

ボーナス時(年2回)お支払額

150,000

安全性をチェック! 年収に対する返済比率

- %

※会員登録し、詳細情報を記入されますと、全ての物件で自動的に金額が表示され、大変便利です。

※まだ会員登録をされていない方は、下記チェック欄をご記入ください。

※上記計算は物件価格 6,490万円+諸経費 8%込みの金額による結果となります。

※返済金額はあくまでも目安です。

お客様の条件からシミュレーションするには?

会員登録してローン情報を入力しておくと全ての物件に対してローンシミュレーションを表示できます。

お気軽にどうぞ!

お気に入りに追加済み

詳細情報

学区

桂台小学校

桂台中学校

用途地域

第一種低層住居専用

地目

宅地

建ぺい率

40%

容積率

80%

駐車場

有り カースペース

接道

6.5m 西 6.5m

権利

所有権

私道面積

無し

セットバック

無し

建物構造

木造

建物階数

2階

築年月

2026/02

入居日

2026/03

建築確認番号

第HPA-25-11034-1号

都市計画

市街化区域

取引態様

仲介

物件番号

47989

設備

都市ガス、公営水道、公共下水、外壁サイディング、駐車場2台以上、緑豊かな住宅地、閑静な住宅地、角地、土地50坪以上、南側道路面す、前道6m以上、隣家との間隔が大きい、スーパーが近い(10分以内)、2沿線以上利用可、小学校徒歩10分以内、中学校徒歩10分以内、保育施設・幼稚園5分以内、公園5分以内、コンビニ5分以内、対面キッチン、都市ガス、システムキッチン、ガス3口、対面キッチン、食器洗い機付き、I型キッチン、ユニットバス、追い焚き、浴室乾燥機、ウォシュレット、トイレ2ヶ所、浴室に窓、暖房便座、セカンド洗面台、バルコニー、ワイドバルコニー、南面バルコニー、2階建、LDK18畳以上、採光2面、全室2面採光、フローリング、クローゼット、収納、床下収納、下駄箱、全居室収納、シャンプドレッサー付き、洗面ボウル2ヶ所、フラット35Sに対応、モニタ付きインターフォン、インターフォン、24時間換気システム、建物10年保証

こだわり

耐震に配慮された建物、断熱に配慮された建物、食器洗い洗浄乾燥機、浴室換気乾燥暖房機、子供の多い街に住む、大人の二人暮らし、LDKは1階に、2階建て住宅限定、LDK18帖以上、広々バルコニー、対面キッチン、小学校10分以内、スーパー10分以内、コンビニ10分以内、保育園10分以内、公園10分以内、都市ガス、フラット35利用可、カースペース3台以上、隣家との間隔たっぷり、角地限定、道路広々(5m以上)、日当たり良好、南道路限定

特記事項

隅切り:有/壁面後退:有/宅地造成工事規制区域:有/高度地区:有/日影制限:有/敷地面積最低限度:有/高さ限度:有/その他制限事項:建築基準法第22条区域 栄湘南桂台地区地区計画 湘南桂台まちづくり指針。

備考

JR根岸線「港南台」駅利用。緑豊かで閑静な住宅地。角地につき陽当たり良好。4LDKのゆとりの間取り、全居室収納付。食洗機、浴室乾燥機、セカンド洗面、床下収納等設備充実。

この一戸建てを見ている人におすすめの物件

お気軽にどうぞ!

お気に入りに追加済み

loading...