今週末モデルハウス見学会開催中!「中田」駅利用 新築一戸建て 吹抜け 全室2面採光

物件種別

新築一戸建て

価格

5,480万円

所在地

横浜市泉区 中田南5丁目 30-5

交通

ブルーライン「中田」駅 徒歩 18 分

東海道本線「戸塚」駅 バス停「通信隊前」まで 徒歩 10 分 バス利用 15分

土地面積

109.61㎡

建物面積

98.12㎡

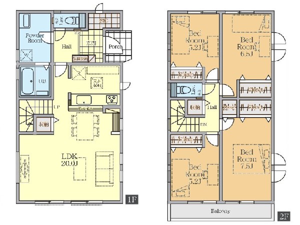
間取り

3LDK

前回情報更新日 2025.12.25 | 次回情報更新予定日 2026.01.08

耐震に配慮された建物

断熱に配慮された建物

カースペース2台

この物件のココがオススメ!

地下鉄BL「中田」駅徒歩圏。南道路接道に付き日当たり良好。全室2面採光で通風良好。LDKは対面キッチンでご家族との会話が弾みます。カースペース2台。

  • システムキッチン
  • ガス3口
  • 対面キッチン
  • ユニットバス
  • 追い焚き

お気軽にどうぞ!

お気に入りに追加済み

所在地マップ

間取り

お気軽にどうぞ!

お気に入りに追加済み

ローンシミュレーション

頭金・金利の場合

この物件の月々のお支払額

128,491

ボーナス時(年2回)お支払額

150,000

安全性をチェック! 年収に対する返済比率

- %

※会員登録し、詳細情報を記入されますと、全ての物件で自動的に金額が表示され、大変便利です。

※まだ会員登録をされていない方は、下記チェック欄をご記入ください。

※上記計算は物件価格 5,480万円+諸経費 8%込みの金額による結果となります。

※返済金額はあくまでも目安です。

お客様の条件からシミュレーションするには?

会員登録してローン情報を入力しておくと全ての物件に対してローンシミュレーションを表示できます。

お気軽にどうぞ!

お気に入りに追加済み

詳細情報

学区

葛野小学校

汲沢中学校

用途地域

第一種低層住居専用

地目

宅地

建ぺい率

50%

容積率

100%

駐車場

有り カースペース

接道

4.5m

権利

所有権

私道面積

無し

セットバック

無し

建物構造

木造

建物階数

2階

築年月

2026/03

入居日

2026/07

建築確認番号

第R07SHC123517号

都市計画

市街化区域

取引態様

仲介

物件番号

48083

設備

都市ガス、公営水道、公共下水、防犯シャッター、吹き抜け、駐車場2台以上、緑豊かな住宅地、閑静な住宅地、南側道路面す、2沿線以上利用可、小学校徒歩10分以内、中学校徒歩10分以内、対面キッチン、都市ガス、システムキッチン、ガス3口、対面キッチン、I型キッチン、ユニットバス、追い焚き、浴室乾燥機、ウォシュレット、トイレ2ヶ所、浴室に窓、暖房便座、バルコニー、南面バルコニー、2階建、LDK18畳以上、採光2面、全室2面採光、フローリング、リビング階段、クローゼット、収納、床下収納、下駄箱、全居室収納、シャンプドレッサー付き、モニタ付きインターフォン、インターフォン、複層ガラス、24時間換気システム、建物10年保証

こだわり

耐震に配慮された建物、断熱に配慮された建物、子供の多い街に住む、大人の二人暮らし、LDKは1階に、2階建て住宅限定、リビングイン階段、LDK18帖以上、吹き抜け有り、対面キッチン、小学校10分以内、コンビニ10分以内、保育園10分以内、公園10分以内、都市ガス、カースペース2台、南道路限定

特記事項

不整形地:有/宅地造成工事規制区域:有/高度地区:有/準防火地域:有/日影制限:有/敷地面積最低限度:有/高さ限度:有/その他制限事項:建築基準法第22条区域 LDKに畳コーナー3.0帖含。

備考

地下鉄BL「中田」駅徒歩圏。南道路接道に付き日当たり良好。全室2面採光で通風良好。LDKは対面キッチンでご家族との会話が弾みます。カースペース2台。

この一戸建てを見ている人におすすめの物件

お気軽にどうぞ!

お気に入りに追加済み

loading...