建物完成しました! 今週末内覧会開催中!「いずみ野」駅徒歩8分 新築一戸建て 閑静な住宅地

物件種別

新築一戸建て

価格

5,180万円

所在地

横浜市泉区 和泉町 6245-5

交通

いずみ野線「いずみ野」駅 徒歩 8 分

ブルーライン「立場」駅 バス停「グリーンハイム前」まで 徒歩 4 分 バス利用 10分

土地面積

106.94㎡

建物面積

83.24㎡

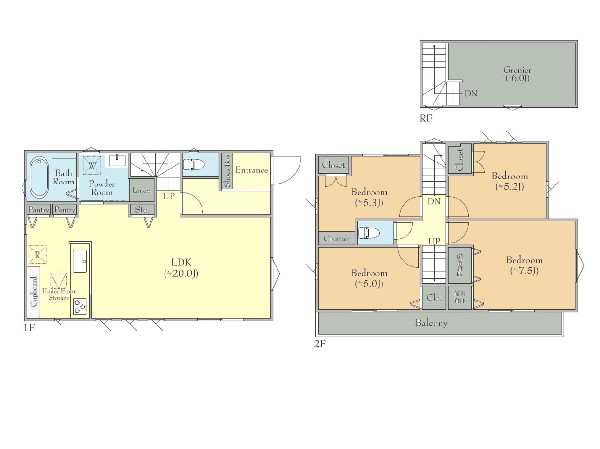
間取り

3LDK

前回情報更新日 2026.01.29 | 次回情報更新予定日 2026.02.12

断熱に配慮された建物

床暖房

道路広々(5m以上)

1 | 6

この物件のココがオススメ!

相鉄いずみ野線「いずみ野」駅徒歩8分。約16帖LDKは対面キッチン・リビング階段で、家族の会話が弾みます。床暖房、食洗機、浄水器、浴室暖房乾燥機、床下収納等設備充実。

  • システムキッチン
  • ガス3口
  • 対面キッチン
  • 食器洗い機付き
  • ユニットバス

お気軽にどうぞ!

お気に入りに追加済み

所在地マップ

間取り

お気軽にどうぞ!

お気に入りに追加済み

ローンシミュレーション

頭金・金利の場合

この物件の月々のお支払額

120,088

ボーナス時(年2回)お支払額

150,000

安全性をチェック! 年収に対する返済比率

- %

※会員登録し、詳細情報を記入されますと、全ての物件で自動的に金額が表示され、大変便利です。

※まだ会員登録をされていない方は、下記チェック欄をご記入ください。

※上記計算は物件価格 5,180万円+諸経費 8%込みの金額による結果となります。

※返済金額はあくまでも目安です。

お客様の条件からシミュレーションするには?

会員登録してローン情報を入力しておくと全ての物件に対してローンシミュレーションを表示できます。

周辺環境

上飯田向原公園(上飯田向原公園まで1300m)

公園

周辺環境:上飯田向原公園(上飯田向原公園まで1300m)(1300m)

八幡山公園(八幡山公園まで300m)

公園

周辺環境:八幡山公園(八幡山公園まで300m)(300m)

和泉保育園(和泉保育園まで900m)

幼稚園・保育園

周辺環境:和泉保育園(和泉保育園まで900m)(900m)

いしかわ幼稚園(いしかわ幼稚園まで1200m)

幼稚園・保育園

周辺環境:いしかわ幼稚園(いしかわ幼稚園まで1200m)(1200m)

横浜市立いずみ野中学校(横浜市立いずみ野中学校まで750m)

中学校

周辺環境:横浜市立いずみ野中学校(横浜市立いずみ野中学校まで750m)(750m)

横浜市立いずみ野小学校(横浜市立いずみ野小学校まで350m)

小学校

周辺環境:横浜市立いずみ野小学校(横浜市立いずみ野小学校まで350m)(350m)

そうてつローゼンいずみ中央店(そうてつローゼンいずみ中央店まで2200m)

スーパー

周辺環境:そうてつローゼンいずみ中央店(そうてつローゼンいずみ中央店まで2200m)(2200m)

ロピアいずみ中央店(ロピアいずみ中央店まで1800m)

スーパー

周辺環境:ロピアいずみ中央店(ロピアいずみ中央店まで1800m)(1800m)

(国際親善総合病院まで2400m)

その他環境写真

周辺環境:(国際親善総合病院まで2400m)(m)

お気軽にどうぞ!

お気に入りに追加済み

詳細情報

学区

いずみ野小学校

いずみ野中学校

用途地域

第一種低層住居専用

地目

宅地

建ぺい率

40%

容積率

80%

駐車場

有り カースペース

接道

6.5m

権利

所有権

私道面積

無し

セットバック

無し

建物構造

木造

建物階数

2階

築年月

2025/12

入居日

即時

都市計画

市街化区域

取引態様

仲介

物件番号

47524

設備

都市ガス、公営水道、公共下水、緑豊かな住宅地、閑静な住宅地、南側道路面す、前道6m以上、2沿線以上利用可、小学校徒歩10分以内、中学校徒歩10分以内、公園5分以内、ウォークインクローゼット、対面キッチン、都市ガス、システムキッチン、ガス3口、対面キッチン、食器洗い機付き、浄水器、I型キッチン、ユニットバス、追い焚き、浴室乾燥機、ウォシュレット、トイレ2ヶ所、浴室1坪以上、浴室に窓、暖房便座、浴室暖房、バルコニー、南面バルコニー、2階建、LDK15畳以上、採光2面、フローリング、リビング階段、クローゼット、ウォークインクローゼット、収納、床下収納、下駄箱、全居室収納、シャンプドレッサー付き、フラット35Sに対応、モニタ付きインターフォン、インターフォン、複層ガラス、24時間換気システム、建物10年保証

こだわり

断熱に配慮された建物、床暖房、食器洗い洗浄乾燥機、浴室換気乾燥暖房機、急行電車でスピード通勤、子供の多い街に住む、大人の二人暮らし、LDKは1階に、2階建て住宅限定、ウォークインクローゼット、リビングイン階段、LDK15帖以上、対面キッチン、浴室1坪以上、小学校10分以内、コンビニ10分以内、公園10分以内、都市ガス、フラット35利用可、道路広々(5m以上)、南道路限定

特記事項

壁面後退:有/宅地造成工事規制区域:有/高度地区:有/日影制限:有/接道と段差:有/敷地面積最低限度:有/高さ限度:有/その他制限事項:建築基準法第22条区域 横浜市建築基準条例第3条による制限有 建物建築・再建築の際、深基礎、基礎杭、擁壁の補修・再構築、外壁後退等の対策が必要となる場合があります 建物建築・再建築の際、防護壁の設置、高基礎、外壁後退等の対策が必要となる場合があります 過小宅地。

備考

相鉄いずみ野線「いずみ野」駅徒歩8分。約16帖LDKは対面キッチン・リビング階段で、家族の会話が弾みます。床暖房、食洗機、浄水器、浴室暖房乾燥機、床下収納等設備充実。

この一戸建てを見ている人におすすめの物件

お気軽にどうぞ!

お気に入りに追加済み

loading...