今週末モデルハウス見学会開催中!「金沢文庫」駅利用 新築一戸建て(2) 長期優良住宅

物件種別

新築一戸建て

価格

6,980万円

所在地

横浜市金沢区 釜利谷東5丁目 5

交通

京浜急行本線「金沢文庫」駅 徒歩 19 分

京浜急行本線「金沢文庫」駅 バス停「神明前」まで 徒歩 2 分 バス利用 5分

土地面積

197.68㎡

建物面積

104.16㎡

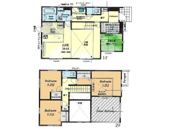
間取り

4LDK

前回情報更新日 2026.05.07 | 次回情報更新予定日 2026.05.21

断熱に配慮された建物

カースペース2台

LDK20帖以上

道路広々(5m以上)

1 | 2

この物件のココがオススメ!

京急線「金沢文庫」駅利用。全室2面採光なので、明るく通風良好なお住まいです。リビングは開放的な吹抜け。食洗機・浴室乾燥機・ペアガラス他設備充実。

  • システムキッチン
  • ガス3口
  • カウンタキッチン
  • 対面キッチン
  • 食器洗い機付き

お気軽にどうぞ!

お気に入りに追加済み

所在地マップ

間取り

お気軽にどうぞ!

お気に入りに追加済み

ローンシミュレーション

頭金・金利の場合

この物件の月々のお支払額

170,508

ボーナス時(年2回)お支払額

150,000

安全性をチェック! 年収に対する返済比率

- %

※会員登録し、詳細情報を記入されますと、全ての物件で自動的に金額が表示され、大変便利です。

※まだ会員登録をされていない方は、下記チェック欄をご記入ください。

※上記計算は物件価格 6,980万円+諸経費 8%込みの金額による結果となります。

※返済金額はあくまでも目安です。

お客様の条件からシミュレーションするには?

会員登録してローン情報を入力しておくと全ての物件に対してローンシミュレーションを表示できます。

お気軽にどうぞ!

お気に入りに追加済み

詳細情報

学区

釜利谷小学校

釜利谷中学校

用途地域

第一種低層住居専用

地目

宅地

建ぺい率

50%

容積率

100%

駐車場

有り カースペース

接道

7.2m

権利

所有権

私道面積

無し

セットバック

無し

建物構造

木造

建物階数

2階

築年月

2026/04

入居日

2026/05

建築確認番号

第R07SHC124887号

都市計画

市街化区域

取引態様

仲介

物件番号

48190-2

設備

個別LPG、公営水道、公共下水、吹き抜け、外壁サイディング、駐車場2台以上、緑豊かな住宅地、閑静な住宅地、前道6m以上、公園5分以内、コンビニ5分以内、システムキッチン、ガス3口、カウンタキッチン、対面キッチン、食器洗い機付き、勝手口、I型キッチン、ユニットバス、追い焚き、浴室乾燥機、ウォシュレット、トイレ2ヶ所、浴室に窓、暖房便座、浴室暖房、バルコニー、南面バルコニー、2階建、LDK20畳以上、全室2面採光、フローリング、リビング階段、クローゼット、ウォークインクローゼット、収納、床下収納、下駄箱、全居室収納、有線放送、シャンプドレッサー付き、モニタ付きインターフォン、全居室複層ガラスか複層サッシ、24時間換気システム、ウォークインクローゼット、対面キッチン、建物10年保証、勾配天井

こだわり

プロパンガス、敷地延長(旗竿地)、断熱に配慮された建物、食器洗い洗浄乾燥機、浴室換気乾燥暖房機、急行電車でスピード通勤、LDKは1階に、2階建て住宅限定、ウォークインクローゼット、リビングイン階段、LDK20帖以上、吹き抜け有り、対面キッチン、大規模公園10分以内、コンビニ10分以内、公園10分以内、カースペース2台、道路広々(5m以上)

特記事項

不整形地:有/宅地造成工事規制区域:有/高度地区:有/準防火地域:有/日影制限:有/敷地面積最低限度:有/高さ限度:有/その他制限事項:建築基準法第22条による区域 敷地面積に協定道路29.88平米含 第二用途地域:一住(建蔽率20%容積率200%)。

備考

京急線「金沢文庫」駅利用。全室2面採光なので、明るく通風良好なお住まいです。リビングは開放的な吹抜け。食洗機・浴室乾燥機・ペアガラス他設備充実。

この一戸建てを見ている人におすすめの物件

お気軽にどうぞ!

お気に入りに追加済み

loading...