川崎市多摩区菅馬場1丁目 中古一戸建 3899万円

物件種別

中古一戸建て

価格

3,899万円

所在地

川崎市多摩区 菅馬場1丁目 31-18

交通

南武線「稲田堤」駅 徒歩 11 分

京王相模原線「京王稲田堤」駅 徒歩 14 分

土地面積

61.00㎡

建物面積

75.32㎡

間取り

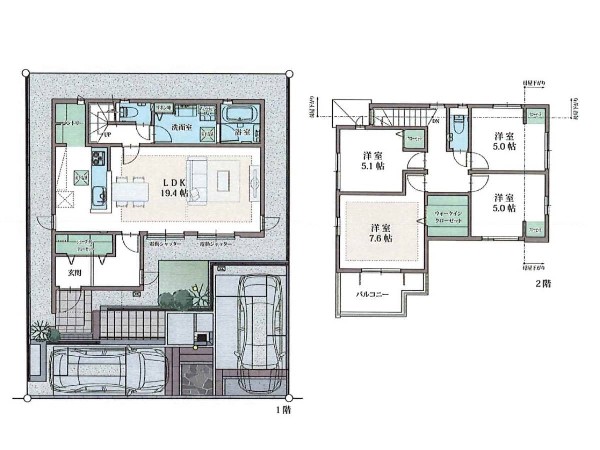
3LDK

前回情報更新日 2025.11.06 | 次回情報更新予定日 2025.11.20

日当たり良好

1 | 3

この物件のココがオススメ!

稲田駅徒歩11分 周辺に買い物施設多く便利 小・中学校徒歩10分以内 全居室二面採光で日当たり良好 

  • システムキッチン
  • ユニットバス
  • ウォシュレット
  • シャンプドレッサー付き
  • トイレ2ヶ所

お気軽にどうぞ!

お気に入りに追加済み

所在地マップ

間取り

お気軽にどうぞ!

お気に入りに追加済み

ローンシミュレーション

頭金・金利の場合

この物件の月々のお支払額

84,192

ボーナス時(年2回)お支払額

150,000

安全性をチェック! 年収に対する返済比率

- %

※会員登録し、詳細情報を記入されますと、全ての物件で自動的に金額が表示され、大変便利です。

※まだ会員登録をされていない方は、下記チェック欄をご記入ください。

※上記計算は物件価格 3,899万円+諸経費 8%込みの金額による結果となります。

※返済金額はあくまでも目安です。

お客様の条件からシミュレーションするには?

会員登録してローン情報を入力しておくと全ての物件に対してローンシミュレーションを表示できます。

周辺環境

稲田堤駅(駅に近いのは忙しい朝や遅い帰宅時に嬉しい。駅周辺のお買物施設も利用でき、便利で快適な生活が送れそう。)

周辺環境:稲田堤駅(駅に近いのは忙しい朝や遅い帰宅時に嬉しい。駅周辺のお買物施設も利用でき、便利で快適な生活が送れそう。)(850m)

京王稲田堤駅(「京王駅前通り」と呼ばれる商店街あり、近くを府中街道が走っている。この通りを隔てて小さなロータリーもあります。)

周辺環境:京王稲田堤駅(「京王駅前通り」と呼ばれる商店街あり、近くを府中街道が走っている。この通りを隔てて小さなロータリーもあります。)(1100m)

サミットストア中野島店  (夜の12時まで営業しています。あなたの街のスーパーマーケットです。)

スーパー

周辺環境:サミットストア中野島店  (夜の12時まで営業しています。あなたの街のスーパーマーケットです。)(800m)

前原医院(診療科目は内科、呼吸器科、消化器科、循環器科などを見てくれる近所の信頼できる診療所。駐車場も2台分無料。)

病院

周辺環境:前原医院(診療科目は内科、呼吸器科、消化器科、循環器科などを見てくれる近所の信頼できる診療所。駐車場も2台分無料。)(400m)

ドラッグストアスマイル 稲田堤店(スーパーやコンビニとともに生活に欠かせないという方も多いドラッグストアは、近所にあると頼もしい限りですね。)

ドラッグストア

周辺環境:ドラッグストアスマイル 稲田堤店(スーパーやコンビニとともに生活に欠かせないという方も多いドラッグストアは、近所にあると頼もしい限りですね。)(700m)

東菅幼稚園(園舎・広い園庭から子供たちの元気な声が聞こえてきます。できることが増えていく、お子様の成長が楽しみです。)

幼稚園・保育園

周辺環境:東菅幼稚園(園舎・広い園庭から子供たちの元気な声が聞こえてきます。できることが増えていく、お子様の成長が楽しみです。)(600m)

川崎市土渕保育園(定員120人規模の認可保育園、敷地面積1600m2に広い園庭のあり、子供達が元気に走り回っている保育園です♪)

幼稚園・保育園

周辺環境:川崎市土渕保育園(定員120人規模の認可保育園、敷地面積1600m2に広い園庭のあり、子供達が元気に走り回っている保育園です♪)(1300m)

下布田小学校(豊かな人間性を持ち、たくましく生きる下布田っ子の育成、考える子、やさいい子、はたらく子、じょうぶな子を目指す。)

小学校

周辺環境:下布田小学校(豊かな人間性を持ち、たくましく生きる下布田っ子の育成、考える子、やさいい子、はたらく子、じょうぶな子を目指す。)(450m)

中野島中学校(教育目標は心の健康な、体の健康な教養豊かな中学生です。)

中学校

周辺環境:中野島中学校(教育目標は心の健康な、体の健康な教養豊かな中学生です。)(650m)

お気軽にどうぞ!

お気に入りに追加済み

詳細情報

学区

下布田小学校

中野島中学校

用途地域

第一種中高層住居専用

地目

宅地

建ぺい率

60%

容積率

160%

駐車場

有り ビルトイン車庫

接道

北西 4.0m

権利

所有権

私道面積

有 16.14m² 1/6

セットバック

無し

建物構造

木造

建物階数

3階

築年月

1996/08

入居日

即時

都市計画

市街化区域

取引態様

仲介

物件番号

A0863

設備

公営水道、公共下水、整形地、緑豊かな住宅地、閑静な住宅地、平坦地、都市近郊、市街地が近い、スーパーが近い(10分以内)、駅まで平坦、2沿線以上利用可、小学校徒歩10分以内、保育施設・幼稚園5分以内、公園5分以内、コンビニ5分以内、整形地、システムキッチン、ユニットバス、ウォシュレット、トイレ2ヶ所、浴室に窓、暖房便座、バルコニー、南面バルコニー、3階建以上、LDK15畳以上、採光3面、全室2面採光、全室南西向き、フローリング、全室フローリング、リビング階段、クローゼット、収納、下駄箱、全居室収納、シャンプドレッサー付き、モニタ付きインターフォン、通風良好、陽当り良好

こだわり

プロパンガス、急行電車でスピード通勤、駅まで平坦ラクラク通勤、2沿線利用であんしん通勤、リビングイン階段、LDKは2階に、LDK15帖以上、小学校10分以内、スーパー10分以内、コンビニ10分以内、小児科医院10分以内、保育園10分以内、幼稚園10分以内、公園10分以内、日当たり良好、整形地、3階建て以上建築可能地域

特記事項

 高度地区:有/準防火地域:有/日影制限:有/高さ限度:有。

備考

稲田駅徒歩11分 周辺に買い物施設多く便利 小・中学校徒歩10分以内 全居室二面採光で日当たり良好 

この一戸建てを見ている人におすすめの物件

お気軽にどうぞ!

お気に入りに追加済み

loading...