川崎市多摩区堰3丁目 中古一戸建 2999万円

物件種別

中古一戸建て

価格

2,999万円

所在地

川崎市多摩区 堰3丁目 14-8

交通

南武線「久地」駅 徒歩 6 分

田園都市線「高津」駅 バス停「久地駅前」まで 徒歩 6 分 バス利用 8分

土地面積

45.58㎡

建物面積

70.06㎡

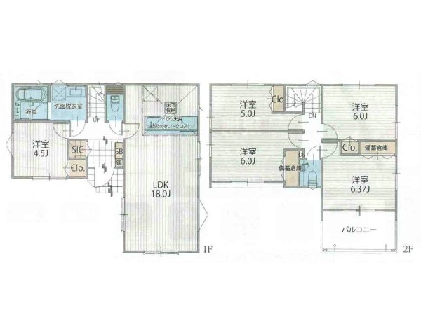
間取り

2SDK

前回情報更新日 2026.02.05 | 次回情報更新予定日 2026.02.19

日当たり良好

1 | 18

この物件のココがオススメ!

駅より徒歩6分 トップライトから明るい日差しを取り込み、開放的な空間を演出 充実した収納スペース確保

  • システムキッチン
  • ガス2口
  • ユニットバス
  • 追い焚き
  • 浴室乾燥機

お気軽にどうぞ!

お気に入りに追加済み

所在地マップ

間取り

お気軽にどうぞ!

お気に入りに追加済み

ローンシミュレーション

頭金・金利の場合

この物件の月々のお支払額

58,982

ボーナス時(年2回)お支払額

150,000

安全性をチェック! 年収に対する返済比率

- %

※会員登録し、詳細情報を記入されますと、全ての物件で自動的に金額が表示され、大変便利です。

※まだ会員登録をされていない方は、下記チェック欄をご記入ください。

※上記計算は物件価格 2,999万円+諸経費 8%込みの金額による結果となります。

※返済金額はあくまでも目安です。

お客様の条件からシミュレーションするには?

会員登録してローン情報を入力しておくと全ての物件に対してローンシミュレーションを表示できます。

周辺環境

ファミリーマート堰三丁目店(広々とした駐車場があります。時間を問わず、幅広い品物が揃うコンビニ。いまや買物だけではなく、行政、銀行、民間サービス等充実の重要施設。)

コンビニ

周辺環境:ファミリーマート堰三丁目店(広々とした駐車場があります。時間を問わず、幅広い品物が揃うコンビニ。いまや買物だけではなく、行政、銀行、民間サービス等充実の重要施設。)(170m)

トップパルケ 久地店(午前8時~午後25時までと比較的遅くまで営業している店舗。駅前に有るので仕事帰りの買物にも便利。宅配サービスも実施中。)

スーパー

周辺環境:トップパルケ 久地店(午前8時~午後25時までと比較的遅くまで営業している店舗。駅前に有るので仕事帰りの買物にも便利。宅配サービスも実施中。)(350m)

クリエイト S・D川崎堰店(スーパーやコンビニとともに生活に欠かせないという方も多いドラッグストアは、近所にあると頼もしい限りです。)

ドラッグストア

周辺環境:クリエイト S・D川崎堰店(スーパーやコンビニとともに生活に欠かせないという方も多いドラッグストアは、近所にあると頼もしい限りです。)(400m)

フレスコ ベンガベンガ 久地店(一通りのものが揃っている街のスーパー。特にお惣菜が豊富でお弁当から一品料理まで陳列されている。)

スーパー

周辺環境:フレスコ ベンガベンガ 久地店(一通りのものが揃っている街のスーパー。特にお惣菜が豊富でお弁当から一品料理まで陳列されている。)(400m)

久地小学校(各学年5~6クラスあり、全校生徒は1100人越えのマンモス校。)

小学校

周辺環境:久地小学校(各学年5~6クラスあり、全校生徒は1100人越えのマンモス校。)(500m)

東高根森林公園(休日には、ランニングする人やお弁当を広げてピクニックするご家族で賑わいます。)

公園

周辺環境:東高根森林公園(休日には、ランニングする人やお弁当を広げてピクニックするご家族で賑わいます。)(1300m)

ライフ宿河原店(スーパーマーケット ライフは、「安全と安心」「鮮度と品質」「信頼とサービス」にこだわっています。 )

スーパー

周辺環境:ライフ宿河原店(スーパーマーケット ライフは、「安全と安心」「鮮度と品質」「信頼とサービス」にこだわっています。 )(1700m)

稲田中学校(昭和22年開校、創立70周年の歴史ある中学校。全校生徒が870人のマンモス校。これだけ子供が多いのは人が集まるエリアを証明しています。)

中学校

周辺環境:稲田中学校(昭和22年開校、創立70周年の歴史ある中学校。全校生徒が870人のマンモス校。これだけ子供が多いのは人が集まるエリアを証明しています。)(1900m)

二子玉川RIZE(洗練されたライフスタイルを発信する街二子玉川の大型ショッピングモール。トレンドをおさえた店舗、映画館、レストラン、カフェなどあり。)

ショッピングセンター

周辺環境:二子玉川RIZE(洗練されたライフスタイルを発信する街二子玉川の大型ショッピングモール。トレンドをおさえた店舗、映画館、レストラン、カフェなどあり。)(3600m)

お気軽にどうぞ!

お気に入りに追加済み

詳細情報

学区

久地小学校

稲田中学校

用途地域

準住居

地目

宅地

建ぺい率

60%

容積率

160%

駐車場

無し

接道

4.0m

権利

所有権

私道面積

無し

セットバック

無し

建物構造

木造

建物階数

2階

築年月

1998/03

入居日

即時

都市計画

市街化区域

取引態様

仲介

物件番号

A1010

設備

都市ガス、公営水道、公共下水、スレート葺、緑豊かな住宅地、閑静な住宅地、平坦地、都市近郊、市街地が近い、周辺交通量少なめ、スーパーが近い(10分以内)、駅まで平坦、始発駅、2沿線以上利用可、小学校徒歩10分以内、保育施設・幼稚園5分以内、コンビニ5分以内、都市ガス、システムキッチン、ガス2口、浄水器、ユニットバス、追い焚き、浴室乾燥機、ウォシュレット、浴室に窓、暖房便座、浴室暖房、バルコニー、内外装リフォーム、2階建、出窓、採光2面、全室2面採光、フローリング、全室フローリング、クローゼット、収納、下駄箱、全居室収納、モニタ付きインターフォン、通風良好、陽当り良好、24時間換気システム

こだわり

カースペース無し、鉄塔近接、浴室換気乾燥暖房機、外食を楽しめる生活、駅まで平坦ラクラク通勤、小学校10分以内、スーパー10分以内、コンビニ10分以内、小児科医院10分以内、保育園10分以内、公園10分以内、都市ガス、日当たり良好

特記事項

 間取りSは納戸/景観法:有/高度地区:有/準防火地域:有/日影制限:有/高さ限度:有。 /≪内装リフォーム…2025年02月(キッチン、浴室、トイレ、洗面所、壁、床、全室、その他 スイッチコンセントなど) 外装リフォーム…2025年02月(外壁、屋根)≫

備考

駅より徒歩6分 トップライトから明るい日差しを取り込み、開放的な空間を演出 充実した収納スペース確保

この一戸建てを見ている人におすすめの物件

お気軽にどうぞ!

お気に入りに追加済み

loading...