川崎市麻生区王禅寺東5丁目 新築一戸建 5590万円 宅地3

物件種別

新築一戸建て

価格

5,590万円

所在地

川崎市麻生区 王禅寺東5丁目 51-22

交通

小田急線「新百合ヶ丘」駅 バス停「王禅寺中央中学校前」まで 徒歩 8 分 バス利用 15分

田園都市線「あざみ野」駅 バス停「王禅寺中央中学校前」まで 徒歩 8 分 バス利用 22分

土地面積

128.11㎡

建物面積

91.49㎡

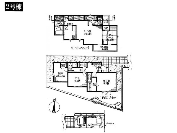
間取り

3LDK

前回情報更新日 2025.11.06 | 次回情報更新予定日 2025.11.20

耐震に配慮された建物

カースペース2台

日当たり良好

隣家との間隔たっぷり

1 | 10

この物件のココがオススメ!

緑豊かな住宅地に全7棟の新築デザイナーズ住宅誕生  ウッドデッキ付き パントリーやWIC等収納豊富

  • システムキッチン
  • ガスコンロ
  • ガス3口
  • 対面キッチン
  • 食器洗い機付き

お気軽にどうぞ!

お気に入りに追加済み

所在地マップ

間取り

お気軽にどうぞ!

お気に入りに追加済み

ローンシミュレーション

頭金・金利の場合

この物件の月々のお支払額

131,578

ボーナス時(年2回)お支払額

150,000

安全性をチェック! 年収に対する返済比率

- %

※会員登録し、詳細情報を記入されますと、全ての物件で自動的に金額が表示され、大変便利です。

※まだ会員登録をされていない方は、下記チェック欄をご記入ください。

※上記計算は物件価格 5,590万円+諸経費 8%込みの金額による結果となります。

※返済金額はあくまでも目安です。

お客様の条件からシミュレーションするには?

会員登録してローン情報を入力しておくと全ての物件に対してローンシミュレーションを表示できます。

周辺環境

業務スーパー上麻生店(食べ盛りのお子様がいらっしゃるご家庭の強い味方、魅力の量・価格のスーパーが近くにあると、とても心強いです。)

スーパー

周辺環境:業務スーパー上麻生店(食べ盛りのお子様がいらっしゃるご家庭の強い味方、魅力の量・価格のスーパーが近くにあると、とても心強いです。)(900m)

クリエイト川崎下麻生店(コンビニ同様に、生活に欠かせないドラッグストア、飲料や食品などももちろん取り扱っていて便利です。)

ドラッグストア

周辺環境:クリエイト川崎下麻生店(コンビニ同様に、生活に欠かせないドラッグストア、飲料や食品などももちろん取り扱っていて便利です。)(650m)

 HACドラッグ下麻生店(地域のお客様に、より便利で、安心して生活していただける超高齢社会のインフラとしてのドラッグストアです。)

ドラッグストア

周辺環境: HACドラッグ下麻生店(地域のお客様に、より便利で、安心して生活していただける超高齢社会のインフラとしてのドラッグストアです。)(650m)

柿生中学校(昭和22年開校の歴史ある中学校です。中学校内に郷土の史料館が設置されています。)

中学校

周辺環境:柿生中学校(昭和22年開校の歴史ある中学校です。中学校内に郷土の史料館が設置されています。)(1800m)

東柿生小学校(学校教育目標「・確かな学力を育む・豊かな心を育む・健康な体をつくる・地域とともに生きる」)

小学校

周辺環境:東柿生小学校(学校教育目標「・確かな学力を育む・豊かな心を育む・健康な体をつくる・地域とともに生きる」)(500m)

柿の実幼稚園(《丈夫な体、良い頭、良い心》《みんな仲良く遊ぶ子ども》《人生に必要な知恵は、すべて幼稚園の砂場で学んだ。》)

幼稚園・保育園

周辺環境:柿の実幼稚園(《丈夫な体、良い頭、良い心》《みんな仲良く遊ぶ子ども》《人生に必要な知恵は、すべて幼稚園の砂場で学んだ。》)(900m)

王禅寺ふるさと公園(多摩丘陵の豊かな自然を生かし、水と緑をテーマとして作られた公園。多目的広場、芝生広場、自然林を生かした散策道、富士山展望広場などあり。)

公園

周辺環境:王禅寺ふるさと公園(多摩丘陵の豊かな自然を生かし、水と緑をテーマとして作られた公園。多目的広場、芝生広場、自然林を生かした散策道、富士山展望広場などあり。)(1200m)

お気軽にどうぞ!

お気に入りに追加済み

詳細情報

学区

東柿生小学校

柿生中学校

用途地域

第一種低層住居専用

地目

宅地

建ぺい率

40%

容積率

80%

駐車場

有り カースペース

接道

4.0m

権利

所有権

私道面積

無し

セットバック

無し

建物構造

木造

建物階数

2階

築年月

2025/05

入居日

即時

建築確認番号

建確あり

都市計画

市街化区域

取引態様

仲介

物件番号

A1137-3

設備

都市ガス、公営水道、公共下水、省エネルギー対策、外壁モルタル、駐車場1台、高台に立地、緑豊かな住宅地、閑静な住宅地、都市近郊、地盤調査済、市街地が近い、周辺交通量少なめ、スーパーが近い(10分以内)、駅まで平坦、2沿線以上利用可、小学校徒歩10分以内、公園5分以内、対面キッチン、パントリー、都市ガス、システムキッチン、ガスコンロ、ガス3口、対面キッチン、食器洗い機付き、浄水器、パントリー(食器・食品の収納庫)、ユニットバス、追い焚き、浴室乾燥機、ウォシュレット、オートバス付き、トイレ2ヶ所、浴室1坪以上、浴室に窓、暖房便座、バルコニー、ウッドデッキ、南面バルコニー、2階建、LDK18畳以上、採光3面、南向き、全室2面採光、フローリング、全室フローリング、リビング階段、クローゼット、ウォークインクローゼット、収納、床下収納、下駄箱、全居室収納、洗面室収納、シャンプドレッサー付き、庭、モニタ付きインターフォン、複層ガラス、火災警報器(報知機)、通風良好、陽当り良好、24時間換気システム、建物10年保証

こだわり

崖下・崖上、耐震に配慮された建物、食器洗い洗浄乾燥機、浴室換気乾燥暖房機、自然を感じる暮らし、2階建て住宅限定、リビングイン階段、LDKは2階に、LDK18帖以上、広々バルコニー、対面キッチン、浴室1坪以上、パントリー、小学校10分以内、コンビニ10分以内、小児科医院10分以内、公園10分以内、都市ガス、カースペース2台、5棟以上の分譲地、隣家との間隔たっぷり、日当たり良好、低層住居専用地域

特記事項

 崖下につき建築制限:有/崖上につき建築制限:有/壁面後退:有/景観法:有/宅地造成工事規制区域:有/日影制限:有/敷地面積最低限度:有/高さ限度:有/建築基準法第22条区域。

備考

緑豊かな住宅地に全7棟の新築デザイナーズ住宅誕生  ウッドデッキ付き パントリーやWIC等収納豊富

この一戸建てを見ている人におすすめの物件

お気軽にどうぞ!

お気に入りに追加済み

loading...