横浜市港北区岸根町 中古一戸建 4180万円

物件種別

中古一戸建て

価格

4,180万円

所在地

横浜市港北区 岸根町 498-13

交通

ブルーライン「岸根公園」駅 徒歩 5 分

横浜線「新横浜」駅 徒歩 21 分

土地面積

100.61㎡

建物面積

92.31㎡

間取り

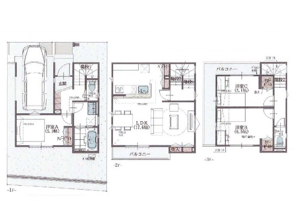
4LDK

前回情報更新日 2025.11.06 | 次回情報更新予定日 2025.11.20

低層住居専用地域

1 | 21

この物件のココがオススメ!

駅徒歩5分 本物の無垢材を使用 山小屋をイメージしてリフォーム 食洗機やエアコン、宅配BOX等設備も充実

  • システムキッチン
  • 食器洗い機付き
  • ユニットバス
  • 浴室乾燥機
  • ウォシュレット

お気軽にどうぞ!

お気に入りに追加済み

所在地マップ

間取り

お気軽にどうぞ!

お気に入りに追加済み

ローンシミュレーション

頭金・金利の場合

この物件の月々のお支払額

92,077

ボーナス時(年2回)お支払額

150,000

安全性をチェック! 年収に対する返済比率

- %

※会員登録し、詳細情報を記入されますと、全ての物件で自動的に金額が表示され、大変便利です。

※まだ会員登録をされていない方は、下記チェック欄をご記入ください。

※上記計算は物件価格 4,180万円+諸経費 8%込みの金額による結果となります。

※返済金額はあくまでも目安です。

お客様の条件からシミュレーションするには?

会員登録してローン情報を入力しておくと全ての物件に対してローンシミュレーションを表示できます。

周辺環境

岸根公園駅(岸根公園に隣接した、横浜市営地下鉄ブルーラインの駅です。横浜市営バスと乗り換えて、鶴見駅方面や、六角橋方面へも行けます。)

周辺環境:岸根公園駅(岸根公園に隣接した、横浜市営地下鉄ブルーラインの駅です。横浜市営バスと乗り換えて、鶴見駅方面や、六角橋方面へも行けます。)(400m)

岸根公園(駅隣接の広くて有名な公園。じゃぶじゃぶ池やアスレチック、大きな芝生広場など、お弁当を持ってピクニックにくる方も大勢います。駐車場も完備。)

公園

周辺環境:岸根公園(駅隣接の広くて有名な公園。じゃぶじゃぶ池やアスレチック、大きな芝生広場など、お弁当を持ってピクニックにくる方も大勢います。駐車場も完備。)(350m)

フィットケアデポ篠原店(店舗数が増え続けるドラッグストア業界。販売している商品もどんどん増えてきている。最近では食品も当然のように扱い、しかも価格が安い。)

ドラッグストア

周辺環境:フィットケアデポ篠原店(店舗数が増え続けるドラッグストア業界。販売している商品もどんどん増えてきている。最近では食品も当然のように扱い、しかも価格が安い。)(350m)

トップフレッシュマーケット岸根店(普段の買い物に便利なスーパー。少し足を延ばせば、新横浜やショッピングモールもあるので買物には困らない立地。)

スーパー

周辺環境:トップフレッシュマーケット岸根店(普段の買い物に便利なスーパー。少し足を延ばせば、新横浜やショッピングモールもあるので買物には困らない立地。)(700m)

篠原西小学校(お子様が一日の中でも長い時間を過ごす小学校。のびのびと過ごし、広い校庭で元気に駆け回ったり、どんどん成長していく姿が目に浮かびます。)

小学校

周辺環境:篠原西小学校(お子様が一日の中でも長い時間を過ごす小学校。のびのびと過ごし、広い校庭で元気に駆け回ったり、どんどん成長していく姿が目に浮かびます。)(900m)

六角橋中学校(昭和22年5月1日に開校した、歴史ある中学校です。)

中学校

周辺環境:六角橋中学校(昭和22年5月1日に開校した、歴史ある中学校です。)(900m)

岸根こども園(共働きの夫婦には近くにあってほしいと願う保育園。それがこの距離にあるのはすごく助かる。しかも大きめの保育園なので安心できる。)

幼稚園・保育園

周辺環境:岸根こども園(共働きの夫婦には近くにあってほしいと願う保育園。それがこの距離にあるのはすごく助かる。しかも大きめの保育園なので安心できる。)(600m)

なみき内科クリニック(各種病院が集まっている集合ビル。近くに病院があるのは、もしもの時に助かる。)

病院

周辺環境:なみき内科クリニック(各種病院が集まっている集合ビル。近くに病院があるのは、もしもの時に助かる。)(450m)

ニトリ新横浜店(お値段以上の商品を提供する家具屋さん。ソファーをはじめ家具が有名ですが、お皿、茶碗、マットなど、引越しに伴う日用品はすべて揃う。)

ホームセンター

周辺環境:ニトリ新横浜店(お値段以上の商品を提供する家具屋さん。ソファーをはじめ家具が有名ですが、お皿、茶碗、マットなど、引越しに伴う日用品はすべて揃う。)(1100m)

お気軽にどうぞ!

お気に入りに追加済み

詳細情報

学区

篠原西小学校

六角橋中学校

用途地域

第一種低層住居専用

地目

宅地

建ぺい率

50%

容積率

100%

駐車場

無し

接道

西 4.0m

権利

所有権

私道面積

有 7.17m²

セットバック

無し

建物構造

木造

建物階数

2階

築年月

1998/12

入居日

即時

都市計画

市街化区域

取引態様

仲介

物件番号

A1647

設備

公営水道、公共下水、吹き抜け、スレート葺、緑豊かな住宅地、閑静な住宅地、都市近郊、周辺交通量少なめ、スーパーが近い(10分以内)、2沿線以上利用可、公園5分以内、コンビニ5分以内、システムキッチン、食器洗い機付き、浄水器、IHクッキングヒーター、ユニットバス、浴室乾燥機、ウォシュレット、トイレ2ヶ所、浴室に窓、暖房便座、内装リフォーム、2階建、和室、採光3面、南向き、クローゼット、押し入れ、収納、下駄箱、全居室収納、シャンプドレッサー付き、モニタ付きインターフォン、陽当り良好

こだわり

カースペース無し、道路狭い(4メートル未満)、食器洗い洗浄乾燥機、浴室換気乾燥暖房機、外食を楽しめる生活、自然を感じる暮らし、LDKは1階に、2階建て住宅限定、吹き抜け有り、和室有り、スーパー10分以内、コンビニ10分以内、小児科医院10分以内、保育園10分以内、幼稚園10分以内、公園10分以内、低層住居専用地域

特記事項

 宅地造成工事規制区域:有/高度地区:有/準防火地域:有/日影制限:有/接道と段差:有/敷地面積最低限度:有/高さ限度:有/緑化地域 通行掘削承諾有 地上権設定:100.61m2有(地下JR貨物線)。 /≪内装リフォーム…2025年07月(キッチン、トイレ、壁、床、全室)≫

備考

駅徒歩5分 本物の無垢材を使用 山小屋をイメージしてリフォーム 食洗機やエアコン、宅配BOX等設備も充実

この一戸建てを見ている人におすすめの物件

お気軽にどうぞ!

お気に入りに追加済み

loading...