横浜市青葉区大場町 新築一戸建 7480万円 A棟

物件種別

新築一戸建て

価格

7,480万円

所在地

横浜市青葉区 大場町 93

交通

田園都市線「市が尾」駅 徒歩 12 分

グリーンライン「川和町」駅 バス停「大場町入口」まで 徒歩 2 分 バス利用 21分

土地面積

125.12㎡

建物面積

101.44㎡

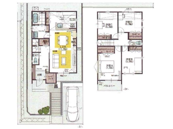
間取り

4LDK

前回情報更新日 2026.02.05 | 次回情報更新予定日 2026.02.19

スカイバルコニー

シューズインクローク

断熱に配慮された建物

省エネに配慮された建物

1 | 9

この物件のココがオススメ!

新築デザイナーズ分譲住宅 2期7棟 『市が尾』駅徒歩12分。都心も、自然も、すぐそばに。

  • システムキッチン
  • ガス3口
  • 対面キッチン
  • 食器洗い機付き
  • ユニットバス

お気軽にどうぞ!

お気に入りに追加済み

所在地マップ

間取り

お気軽にどうぞ!

お気に入りに追加済み

ローンシミュレーション

頭金・金利の場合

この物件の月々のお支払額

184,514

ボーナス時(年2回)お支払額

150,000

安全性をチェック! 年収に対する返済比率

- %

※会員登録し、詳細情報を記入されますと、全ての物件で自動的に金額が表示され、大変便利です。

※まだ会員登録をされていない方は、下記チェック欄をご記入ください。

※上記計算は物件価格 7,480万円+諸経費 8%込みの金額による結果となります。

※返済金額はあくまでも目安です。

お客様の条件からシミュレーションするには?

会員登録してローン情報を入力しておくと全ての物件に対してローンシミュレーションを表示できます。

周辺環境

もえぎ野中学校(通称は「もえ中」。教育具体目標は、「1 何事にも挑戦しよう」「2 挨拶しよう」「3 地域に貢献しよう」。)

中学校

周辺環境:もえぎ野中学校(通称は「もえ中」。教育具体目標は、「1 何事にも挑戦しよう」「2 挨拶しよう」「3 地域に貢献しよう」。)(1800m)

市ヶ尾小学校(学校教育目標は、「自他の違いや良さがわかり(思考)、自ら判断し(判断)、自信をもって行動する(表現)子どもを育てる。」)

小学校

周辺環境:市ヶ尾小学校(学校教育目標は、「自他の違いや良さがわかり(思考)、自ら判断し(判断)、自信をもって行動する(表現)子どもを育てる。」)(790m)

大場白ゆり幼稚園(一人ひとりを大切に、アットホームな雰囲気の保育。自分で考えて行動のできる子どもの育成を目指しています。)

幼稚園・保育園

周辺環境:大場白ゆり幼稚園(一人ひとりを大切に、アットホームな雰囲気の保育。自分で考えて行動のできる子どもの育成を目指しています。)(610m)

荏田保育園(経験豊かな保育士が多く、子ども一人ひとりを大切にして日々保育しています。)

幼稚園・保育園

周辺環境:荏田保育園(経験豊かな保育士が多く、子ども一人ひとりを大切にして日々保育しています。)(1030m)

小黒公園(住宅街らしく近隣には公園が複数ありますので、お子様にも嬉しい住環境です。きっと、お気に入りの公園がみつかるはずです。)

公園

周辺環境:小黒公園(住宅街らしく近隣には公園が複数ありますので、お子様にも嬉しい住環境です。きっと、お気に入りの公園がみつかるはずです。)(1140m)

大場かやのき公園(樹齢600年ともいわれる「かやの木」がシンボルの穴場の公園です。園内には大きな複合遊具があります。)

公園

周辺環境:大場かやのき公園(樹齢600年ともいわれる「かやの木」がシンボルの穴場の公園です。園内には大きな複合遊具があります。)(810m)

東急ストア市ヶ尾店(市が尾駅前直結のスーパー。営業時間は8時~深夜1時までと幅広い時間帯に利用することができます。)

スーパー

周辺環境:東急ストア市ヶ尾店(市が尾駅前直結のスーパー。営業時間は8時~深夜1時までと幅広い時間帯に利用することができます。)(1000m)

青葉区総合庁舎(「市が尾駅」下車徒歩8分。開閉庁時間は、主に月~金曜日 午前8時45分~午後5時00分。)

役所

周辺環境:青葉区総合庁舎(「市が尾駅」下車徒歩8分。開閉庁時間は、主に月~金曜日 午前8時45分~午後5時00分。)(650m)

青葉スポーツセンター(館内には、広さの異なる体育室が3部屋、ほかにマシーンが完備されたトレーニング室、会議やミーティングにも活用できる研修室があります)

その他環境写真

周辺環境:青葉スポーツセンター(館内には、広さの異なる体育室が3部屋、ほかにマシーンが完備されたトレーニング室、会議やミーティングにも活用できる研修室があります)(500m)

お気軽にどうぞ!

お気に入りに追加済み

詳細情報

学区

市ケ尾小学校

もえぎ野中学校

用途地域

第一種低層住居専用

地目

宅地

建ぺい率

50%

容積率

80%

駐車場

有り カースペース

接道

西 4.5m3.5m

権利

所有権

私道面積

有 103.00m² 1/7

セットバック

無し

建物構造

木造

建物階数

2階

築年月

2026/01

入居日

2026/02

建築確認番号

第25KAK建確01743号

都市計画

市街化区域

取引態様

仲介

物件番号

A1765-A

設備

都市ガス、公営水道、公共下水、吹き抜け、省エネルギー対策、シックハウス対策、駐車場2台以上、緑豊かな住宅地、閑静な住宅地、角地、都市近郊、地盤調査済、市街地が近い、周辺交通量少なめ、2沿線以上利用可、公園5分以内、システムキッチン、ガス3口、対面キッチン、食器洗い機付き、浄水器、I型キッチン、パントリー(食器・食品の収納庫)、ユニットバス、追い焚き、浴室乾燥機、ウォシュレット、オートバス付き、トイレ2ヶ所、浴室1坪以上、浴室に窓、暖房便座、浴室暖房、バルコニー、バルコニー2面、バルコニー3面、ルーフバルコニー、南面バルコニー、2階建、LDK15畳以上、省エネ給湯器、採光2面、南向き、クローゼット、収納、下駄箱、全居室収納、シューズインクローク、シャンプドレッサー付き、年度内入居可、モニタ付きインターフォン、複層ガラス、火災警報器(報知機)、陽当り良好、24時間換気システム、シューズインクローク、対面キッチン、パントリー、都市ガス、建物10年保証

こだわり

断熱に配慮された建物、省エネに配慮された建物、食器洗い洗浄乾燥機、浴室換気乾燥暖房機、LDKは1階に、2階建て住宅限定、スカイバルコニー、シューズインクローク、LDK15帖以上、吹き抜け有り、広々バルコニー、対面キッチン、浴室1坪以上、パントリー、小学校10分以内、有料道路インター2キロ以内、コンビニ10分以内、小児科医院10分以内、幼稚園10分以内、公園10分以内、都市ガス、フラット35利用可、カースペース2台、10棟以上の分譲地、角地限定、日当たり良好、低層住居専用地域

特記事項

 緑化地域 駐車は車種により2台可 私道持分6.27m2有 建築基準法第22条による区域/隅切り:有/壁面後退:有/宅地造成工事規制区域:有/高度地区:有/日影制限:有/敷地面積最低限度:有/高さ限度:有。

備考

新築デザイナーズ分譲住宅 2期7棟 『市が尾』駅徒歩12分。都心も、自然も、すぐそばに。

この一戸建てを見ている人におすすめの物件

お気軽にどうぞ!

お気に入りに追加済み

loading...