川崎市宮前区西野川3丁目 新築一戸建 5180万円 1号棟

物件種別

新築一戸建て

価格

5,180万円

所在地

川崎市宮前区 西野川3丁目 17-3214-17

交通

田園都市線「宮前平」駅 バス停「野川台東」まで 徒歩 1 分 バス利用 12分

南武線「武蔵中原」駅 バス停「野川台」まで 徒歩 4 分 バス利用 16分

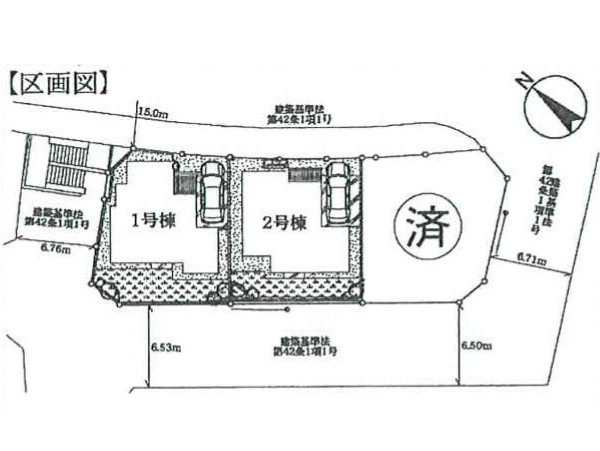
土地面積

128.33㎡

建物面積

106.40㎡

間取り

3LDK

前回情報更新日 2026.02.06 | 次回情報更新予定日 2026.02.20

耐震に配慮された建物

角地限定

道路広々(5m以上)

日当たり良好

1 | 2

この物件のココがオススメ!

「宮前平」駅 バス停まで1分 畳コーナーのある落ち着いたリビング 太陽光パネルつき新築全3棟が誕生です

  • システムキッチン
  • ガス3口
  • 対面キッチン
  • L型キッチン
  • ユニットバス

お気軽にどうぞ!

お気に入りに追加済み

所在地マップ

間取り

お気軽にどうぞ!

お気に入りに追加済み

ローンシミュレーション

頭金・金利の場合

この物件の月々のお支払額

120,088

ボーナス時(年2回)お支払額

150,000

安全性をチェック! 年収に対する返済比率

- %

※会員登録し、詳細情報を記入されますと、全ての物件で自動的に金額が表示され、大変便利です。

※まだ会員登録をされていない方は、下記チェック欄をご記入ください。

※上記計算は物件価格 5,180万円+諸経費 8%込みの金額による結果となります。

※返済金額はあくまでも目安です。

お客様の条件からシミュレーションするには?

会員登録してローン情報を入力しておくと全ての物件に対してローンシミュレーションを表示できます。

周辺環境

野川小学校(明治6年創立で約155年の歴史がある学校。総生徒数約780人で各学年120~130人。)

小学校

周辺環境:野川小学校(明治6年創立で約155年の歴史がある学校。総生徒数約780人で各学年120~130人。)(550m)

野川中学校(自己の将来を思慮しながら、自主的、創造的に活動する生徒の育成を目指します。)

中学校

周辺環境:野川中学校(自己の将来を思慮しながら、自主的、創造的に活動する生徒の育成を目指します。)(300m)

野川第二公園(青空の下で駆け回ったり、遊具で遊んだり、思い思いの遊びができます。子供たちの元気で楽しそうな声が響き渡ります。)

公園

周辺環境:野川第二公園(青空の下で駆け回ったり、遊具で遊んだり、思い思いの遊びができます。子供たちの元気で楽しそうな声が響き渡ります。)(210m)

セブンイレブン野川台店(セブンミールは大好評です。今や公共料金の支払いや宅配など、色々な用途があるコンビニは必須ですね。)

コンビニ

周辺環境:セブンイレブン野川台店(セブンミールは大好評です。今や公共料金の支払いや宅配など、色々な用途があるコンビニは必須ですね。)(300m)

ヨークマート川崎野川店(セブン&アイ・ホールディングス傘下のイトーヨーカ堂が関東南部に展開する日本のスーパーマーケットです。)

スーパー

周辺環境:ヨークマート川崎野川店(セブン&アイ・ホールディングス傘下のイトーヨーカ堂が関東南部に展開する日本のスーパーマーケットです。)(900m)

こども元気!内科クリニック(おしゃれで楽しい小児科クリニックです。隣に専用の健診・ワクチンセンターを併設しております。)

病院

周辺環境:こども元気!内科クリニック(おしゃれで楽しい小児科クリニックです。隣に専用の健診・ワクチンセンターを併設しております。)(900m)

お気軽にどうぞ!

お気に入りに追加済み

詳細情報

学区

野川小学校

野川中学校

用途地域

第二種低層住居専用

地目

宅地

建ぺい率

50%

容積率

100%

駐車場

有り カースペース

接道

北東 16.0m 北西 6.7m 南西 6.5m

権利

所有権

私道面積

無し

セットバック

無し

建物構造

木造

建物階数

2階

築年月

2026/03

入居日

2026/04

建築確認番号

第KS125-3820-50285号

都市計画

市街化区域

取引態様

仲介

物件番号

A1772-1

設備

都市ガス、公営水道、公共下水、耐震構造、駐車場1台、高台に立地、角地、都市近郊、地盤調査済、南側道路面す、前道6m以上、市街地が近い、2沿線以上利用可、小学校徒歩10分以内、中学校徒歩10分以内、公園5分以内、コンビニ5分以内、システムキッチン、ガス3口、対面キッチン、L型キッチン、浄水器、ユニットバス、追い焚き、浴室乾燥機、ウォシュレット、トイレ2ヶ所、浴室に窓、暖房便座、バルコニー、テラス、南面バルコニー、2階建、LDK15畳以上、全居室6畳以上、グルニエ、太陽光発電システム、採光3面、全室2面採光、南西向き、クローゼット、ウォークインクローゼット、収納、床下収納、下駄箱、屋根裏収納、全居室収納、洗面室収納、シャンプドレッサー付き、フラット35Sに対応、モニタ付きインターフォン、複層ガラス、火災警報器(報知機)、通風良好、陽当り良好、24時間換気システム、ウォークインクローゼット、対面キッチン、都市ガス、建物10年保証

こだわり

崖下・崖上、大通り沿い、耐震に配慮された建物、運転ラクラク生活、子供の多い街に住む、自然を感じる暮らし、LDKは1階に、2階建て住宅限定、ウォークインクローゼット、LDK15帖以上、主寝室 8帖以上、対面キッチン、ロフト・小屋裏収納、小学校10分以内、コンビニ10分以内、幼稚園10分以内、公園10分以内、都市ガス、フラット35利用可、角地限定、道路広々(5m以上)、日当たり良好、道路と段差無し、低層住居専用地域

特記事項

 建築基準法第22条による区域 再建築の際は擁壁側にRC造りの防護壁を設ける必要があります/崖上につき建築制限:有/隅切り:有/壁面後退:有/景観法:有/宅地造成工事規制区域:有/高度地区:有/日影制限:有/敷地面積最低限度:有/高さ限度:有。

備考

「宮前平」駅 バス停まで1分 畳コーナーのある落ち着いたリビング 太陽光パネルつき新築全3棟が誕生です

この一戸建てを見ている人におすすめの物件

お気軽にどうぞ!

お気に入りに追加済み

loading...