川崎市幸区古川町 新築一戸建 5790万円 C号棟

物件種別

新築一戸建て

価格

5,790万円

所在地

川崎市幸区 古川町 146-4

交通

南武線「矢向」駅 徒歩 14 分

横須賀線「新川崎」駅 徒歩 23 分

土地面積

55.00㎡

建物面積

104.75㎡

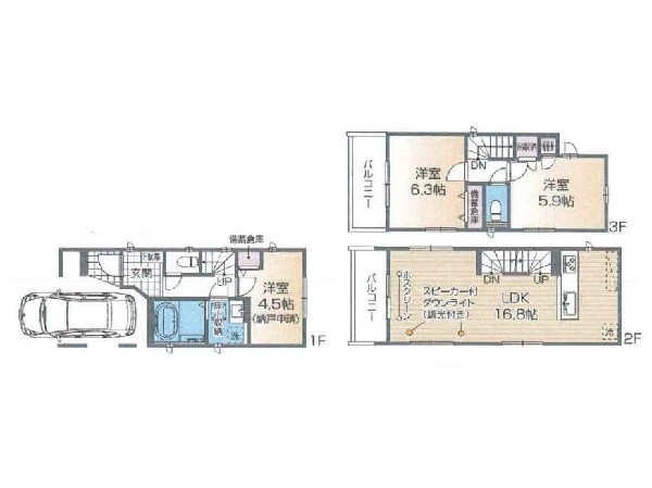
間取り

2SLDK

前回情報更新日 2026.02.05 | 次回情報更新予定日 2026.02.19

耐震に配慮された建物

省エネに配慮された建物

道路広々(5m以上)

1 | 11

この物件のココがオススメ!

都内へのアクセス良好 周辺に生活至便施設が多く便利な立地 平坦地なのでベビーカーや自転車もラクラク

  • システムキッチン
  • ガスコンロ
  • ガス3口
  • カウンタキッチン
  • 対面キッチン

お気軽にどうぞ!

お気に入りに追加済み

所在地マップ

間取り

お気軽にどうぞ!

お気に入りに追加済み

ローンシミュレーション

頭金・金利の場合

この物件の月々のお支払額

137,180

ボーナス時(年2回)お支払額

150,000

安全性をチェック! 年収に対する返済比率

- %

※会員登録し、詳細情報を記入されますと、全ての物件で自動的に金額が表示され、大変便利です。

※まだ会員登録をされていない方は、下記チェック欄をご記入ください。

※上記計算は物件価格 5,790万円+諸経費 8%込みの金額による結果となります。

※返済金額はあくまでも目安です。

お客様の条件からシミュレーションするには?

会員登録してローン情報を入力しておくと全ての物件に対してローンシミュレーションを表示できます。

周辺環境

オリンピック川崎鹿島田店(本館の営業時間10時~21時迄営業、フードコートなどもあり休日に家族でお出かけなどにも最適です。)

スーパー

周辺環境:オリンピック川崎鹿島田店(本館の営業時間10時~21時迄営業、フードコートなどもあり休日に家族でお出かけなどにも最適です。)(600m)

区役所(幸区)(引越しや出産、検診、保育園の入園、年金、税金、各種手続き等々、節目で必ず行く必要がある区役所。)

役所

周辺環境:区役所(幸区)(引越しや出産、検診、保育園の入園、年金、税金、各種手続き等々、節目で必ず行く必要がある区役所。)(220m)

新川崎スクエア(2015年にオープンしたショッピングビルです。スーパーのマルエツやサイゼリア、スシロー等の飲食店、100円ショップや美容院、銀行等が入っています。)

ショッピングセンター

周辺環境:新川崎スクエア(2015年にオープンしたショッピングビルです。スーパーのマルエツやサイゼリア、スシロー等の飲食店、100円ショップや美容院、銀行等が入っています。)(1400m)

コーナン川崎小向店(地域でいちばんぴったりな商品やサービスをお届けする、そんなホームセンターをめざしていきます。)

ホームセンター

周辺環境:コーナン川崎小向店(地域でいちばんぴったりな商品やサービスをお届けする、そんなホームセンターをめざしていきます。)(750m)

クリエイトS・D 塚越(コンビニ同様に、生活に欠かせないドラッグストア、飲料や食品などももちろん取り扱っていて便利です。)

ドラッグストア

周辺環境:クリエイトS・D 塚越(コンビニ同様に、生活に欠かせないドラッグストア、飲料や食品などももちろん取り扱っていて便利です。)(800m)

セブン-イレブン 川崎古川町店(セブンミールは大好評です。今や公共料金の支払いや宅配など、色々な用途があるコンビニは必須ですね。)

コンビニ

周辺環境:セブン-イレブン 川崎古川町店(セブンミールは大好評です。今や公共料金の支払いや宅配など、色々な用途があるコンビニは必須ですね。)(300m)

鹿島田幼稚園(送り迎えに無理のない距離感にある幼稚園です。豊かな自然に囲まれ、園舎・園庭から子供たちの元気な声が聞こえてきます。お子様の成長が楽しみです。)

幼稚園・保育園

周辺環境:鹿島田幼稚園(送り迎えに無理のない距離感にある幼稚園です。豊かな自然に囲まれ、園舎・園庭から子供たちの元気な声が聞こえてきます。お子様の成長が楽しみです。)(1800m)

古川小学校(お子様が一日の中でも長い時間を過ごす小学校。どんどん成長していくお子様の姿が目に浮かびます。)

小学校

周辺環境:古川小学校(お子様が一日の中でも長い時間を過ごす小学校。どんどん成長していくお子様の姿が目に浮かびます。)(450m)

塚越中学校(成長の過程でより濃い時間を過ごす3年間。ここで過ごす時間は、お子様にとって、とても大切な思い出となるはずです。)

中学校

周辺環境:塚越中学校(成長の過程でより濃い時間を過ごす3年間。ここで過ごす時間は、お子様にとって、とても大切な思い出となるはずです。)(800m)

お気軽にどうぞ!

お気に入りに追加済み

詳細情報

学区

古川小学校

塚越中学校

用途地域

第一種中高層住居専用

地目

宅地

建ぺい率

60%

容積率

200%

駐車場

有り ビルトイン車庫

接道

7.5m

権利

所有権

私道面積

無し

セットバック

無し

建物構造

木造

建物階数

3階

築年月

2026/02

入居日

2026/02

建築確認番号

第HPA-25-11393-1

都市計画

市街化区域

取引態様

仲介

物件番号

A1887-C

設備

都市ガス、公営水道、公共下水、設計住宅性能評価付、省エネルギー対策、耐震構造、シックハウス対策、外壁サイディング、建設住宅性能評価書(新築時)、ビルトインガレージ、駐車場1台、整形地、閑静な住宅地、平坦地、都市近郊、地盤調査済、前道6m以上、市街地が近い、周辺交通量少なめ、スーパーが近い(10分以内)、駅まで平坦、始発駅、2沿線以上利用可、小学校徒歩10分以内、中学校徒歩10分以内、保育施設・幼稚園5分以内、公園5分以内、コンビニ5分以内、ウォークインクローゼット、対面キッチン、都市ガス、整形地、システムキッチン、ガスコンロ、ガス3口、カウンタキッチン、対面キッチン、浄水器、ユニットバス、追い焚き、浴室乾燥機、ウォシュレット、オートバス付き、トイレ2ヶ所、浴室1坪以上、浴室に窓、暖房便座、浴室暖房、バルコニー、3階建以上、LDK15畳以上、省エネ給湯器、採光3面、全室2面採光、フローリング、全室フローリング、リビング階段、クローゼット、ウォークインクローゼット、収納、床下収納、下駄箱、全居室収納、シャンプドレッサー付き、年度内入居可、モニタ付きインターフォン、複層ガラス、火災警報器(報知機)、全居室複層ガラスか複層サッシ、通風良好、陽当り良好、24時間換気システム、建物10年保証

こだわり

耐震に配慮された建物、省エネに配慮された建物、浴室換気乾燥暖房機、運転ラクラク生活、外食を楽しめる生活、駅まで平坦ラクラク通勤、子供の多い街に住む、ウォークインクローゼット、リビングイン階段、LDKは2階に、LDK15帖以上、広々バルコニー、対面キッチン、浴室1坪以上、小学校10分以内、スーパー10分以内、コンビニ10分以内、小児科医院10分以内、保育園10分以内、幼稚園10分以内、公園10分以内、都市ガス、屋根付きカースペース、道路広々(5m以上)、整形地、道路と段差無し、3階建て以上建築可能地域

特記事項

 景観法:有/宅地造成工事規制区域:有/高度地区:有/準防火地域:有/日影制限:有/高さ限度:有/建物面積に車庫面積8.44平米含む、間取りSは納戸。

備考

都内へのアクセス良好 周辺に生活至便施設が多く便利な立地 平坦地なのでベビーカーや自転車もラクラク

この一戸建てを見ている人におすすめの物件

お気軽にどうぞ!

お気に入りに追加済み

loading...