川崎市麻生区東百合丘2丁目 中古一戸建 2799万円

物件種別

中古一戸建て

価格

2,799万円

所在地

川崎市麻生区 東百合丘2丁目 40-9

交通

小田急線「百合ヶ丘」駅 バス停「餅坂」まで 徒歩 5 分 バス利用 7分

田園都市線「あざみ野」駅 バス停「田園調布学園大学キャンパス」まで 徒歩 9 分 バス利用 23分

土地面積

55.26㎡

建物面積

94.56㎡

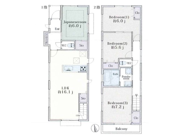
間取り

4DK

前回情報更新日 2026.02.02 | 次回情報更新予定日 2026.02.16

道路広々(5m以上)

日当たり良好

1 | 7

この物件のココがオススメ!

百合ヶ丘駅 水廻りを新規交換済みの再生住宅 南側11mの道路に面した陽当り良好な住まい 地下車庫付き

  • システムキッチン
  • ガス3口
  • L型キッチン
  • ユニットバス
  • 追い焚き

お気軽にどうぞ!

お気に入りに追加済み

所在地マップ

間取り

お気軽にどうぞ!

お気に入りに追加済み

ローンシミュレーション

頭金・金利の場合

この物件の月々のお支払額

53,379

ボーナス時(年2回)お支払額

150,000

安全性をチェック! 年収に対する返済比率

- %

※会員登録し、詳細情報を記入されますと、全ての物件で自動的に金額が表示され、大変便利です。

※まだ会員登録をされていない方は、下記チェック欄をご記入ください。

※上記計算は物件価格 2,799万円+諸経費 8%込みの金額による結果となります。

※返済金額はあくまでも目安です。

お客様の条件からシミュレーションするには?

会員登録してローン情報を入力しておくと全ての物件に対してローンシミュレーションを表示できます。

周辺環境

ファミリーマート 川崎東百合丘店(ファミリーマート人気のファミチキをはじめスナックメニューも大人気です。)

コンビニ

周辺環境:ファミリーマート 川崎東百合丘店(ファミリーマート人気のファミチキをはじめスナックメニューも大人気です。)(90m)

長沢小学校(教育方針は自ら考え判断し、主体的に行動できる子、認め合い、励まし合い、させ合うやさしい子、苦手なことにも挑戦し、最後までやり遂げる子。)

小学校

周辺環境:長沢小学校(教育方針は自ら考え判断し、主体的に行動できる子、認め合い、励まし合い、させ合うやさしい子、苦手なことにも挑戦し、最後までやり遂げる子。)(110m)

長沢中学校 (学校教育目標は自分を見つめよう、心身を鍛えよう、規律を守り、責任を果たそう、想像的な精神をみがこう。)

中学校

周辺環境:長沢中学校 (学校教育目標は自分を見つめよう、心身を鍛えよう、規律を守り、責任を果たそう、想像的な精神をみがこう。)(400m)

いなげや 新ゆりヨネッティー王禅寺前店(営業時間9時から22時、駐車場226台完備の大型スーパーです。)

スーパー

周辺環境:いなげや 新ゆりヨネッティー王禅寺前店(営業時間9時から22時、駐車場226台完備の大型スーパーです。)(650m)

百合丘さくら幼稚園  (自然に囲まれた幼稚園です。特別指導として絵画、英語、お習字、体操等各専門の先生が指導します。)

幼稚園・保育園

周辺環境:百合丘さくら幼稚園  (自然に囲まれた幼稚園です。特別指導として絵画、英語、お習字、体操等各専門の先生が指導します。)(750m)

百合ヶ丘駅 (ダイヤ改正により利便性が向上した小田急線、準急停車駅。駅前にはスーパー・飲食店・コンビニ・銀行などが揃う。)

周辺環境:百合ヶ丘駅 (ダイヤ改正により利便性が向上した小田急線、準急停車駅。駅前にはスーパー・飲食店・コンビニ・銀行などが揃う。)(2300m)

お気軽にどうぞ!

お気に入りに追加済み

詳細情報

学区

長沢小学校

長沢中学校

用途地域

第一種住居

地目

宅地

建ぺい率

60%

容積率

200%

駐車場

有り 地下車庫

接道

11.0m4.0m

権利

所有権

私道面積

無し

セットバック

無し

建物構造

木造

建物階数

3階

築年月

1995/09

入居日

即時

都市計画

市街化区域

取引態様

仲介

物件番号

A1894

設備

都市ガス、公営水道、公共下水、スレート葺、駐車場1台、緑豊かな住宅地、閑静な住宅地、都市近郊、南側道路面す、前道6m以上、市街地が近い、スーパーが近い(10分以内)、2沿線以上利用可、小学校徒歩10分以内、中学校徒歩10分以内、保育施設・幼稚園5分以内、公園5分以内、コンビニ5分以内、都市ガス、システムキッチン、ガス3口、L型キッチン、ユニットバス、追い焚き、ウォシュレット、トイレ2ヶ所、浴室に窓、暖房便座、バルコニー、南面バルコニー、内外装リフォーム、3階建以上、和室、出窓、採光2面、南向き、全室2面採光、フローリング、クローゼット、押し入れ、収納、下駄箱、全居室収納、シャンプドレッサー付き、年度内入居可、モニタ付きインターフォン、通風良好、陽当り良好

こだわり

運転ラクラク生活、子供の多い街に住む、LDKは1階に、和室有り、小学校10分以内、スーパー10分以内、コンビニ10分以内、小児科医院10分以内、保育園10分以内、幼稚園10分以内、公園10分以内、都市ガス、道路広々(5m以上)、日当たり良好、南道路限定、3階建て以上建築可能地域

特記事項

 景観法:有/宅地造成工事規制区域:有/高度地区:有/準防火地域:有/日影制限:有/高さ限度:有/建物面積:地下車庫面積約12.15平米含。 /≪内装リフォーム…2026年01月(キッチン、浴室、トイレ、洗面所、壁、床) 外装リフォーム…2026年01月(外壁、屋根)≫

備考

百合ヶ丘駅 水廻りを新規交換済みの再生住宅 南側11mの道路に面した陽当り良好な住まい 地下車庫付き

この一戸建てを見ている人におすすめの物件

お気軽にどうぞ!

お気に入りに追加済み

loading...