川崎市宮前区初山2丁目 中古一戸建 3150万円

物件種別

中古一戸建て

価格

3,150万円

所在地

川崎市宮前区 初山2丁目 26-1-2

交通

田園都市線「宮前平」駅 バス停「菅生車庫」まで 徒歩 14 分 バス利用 10分

田園都市線「溝の口」駅 バス停「菅生小学校入口」まで 徒歩 5 分 バス利用 22分

土地面積

69.55㎡

建物面積

76.59㎡

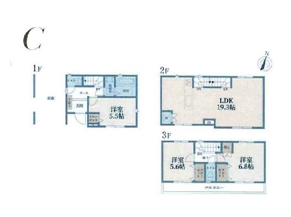
間取り

3SLDK

前回情報更新日 2026.05.08 | 次回情報更新予定日 2026.05.22

スカイバルコニー

道路広々(5m以上)

日当たり良好

1 | 7

この物件のココがオススメ!

宮前平駅 周辺は教育・お買い物施設などの利便施設が充実 新規内外装リフォーム ルーフバルコニー付き

  • システムキッチン
  • ガス3口
  • ユニットバス
  • 追い焚き
  • シャンプドレッサー付き

お気軽にどうぞ!

お気に入りに追加済み

所在地マップ

間取り

お気軽にどうぞ!

お気に入りに追加済み

ローンシミュレーション

頭金・金利の場合

この物件の月々のお支払額

63,235

ボーナス時(年2回)お支払額

150,000

安全性をチェック! 年収に対する返済比率

- %

※会員登録し、詳細情報を記入されますと、全ての物件で自動的に金額が表示され、大変便利です。

※まだ会員登録をされていない方は、下記チェック欄をご記入ください。

※上記計算は物件価格 3,150万円+諸経費 8%込みの金額による結果となります。

※返済金額はあくまでも目安です。

お客様の条件からシミュレーションするには?

会員登録してローン情報を入力しておくと全ての物件に対してローンシミュレーションを表示できます。

周辺環境

食品館あおば初山店 (「より良い品をより安く」をモットーに、地域のお客様に安心・安全をお届けすべく、地域一番店を目指しています。)

スーパー

周辺環境:食品館あおば初山店 (「より良い品をより安く」をモットーに、地域のお客様に安心・安全をお届けすべく、地域一番店を目指しています。)(210m)

マクドナルド川崎初山店 (無料の駐車スペースが32台ありますので車での来場も便利。)

飲食店

周辺環境:マクドナルド川崎初山店 (無料の駐車スペースが32台ありますので車での来場も便利。)(350m)

菅生小学校 (数年前に創立50周年を迎えた歴史ある小学校。2019年も115名の1年生が入学し、700人超えの児童を44名の教員が支える学校。)

小学校

周辺環境:菅生小学校 (数年前に創立50周年を迎えた歴史ある小学校。2019年も115名の1年生が入学し、700人超えの児童を44名の教員が支える学校。)(600m)

クリエイトS・D川崎菅生店 (スーパーやコンビニとともに生活に欠かせないという方も多いドラッグストアね。駐車場も広く、立ち寄りやすく便利です。)

ドラッグストア

周辺環境:クリエイトS・D川崎菅生店 (スーパーやコンビニとともに生活に欠かせないという方も多いドラッグストアね。駐車場も広く、立ち寄りやすく便利です。)(850m)

菅生中学校(小学校よりもより長い時間を過ごす中学校。ここで過ごす時間はお子様にとって大切な思い出となるはずです。)

中学校

周辺環境:菅生中学校(小学校よりもより長い時間を過ごす中学校。ここで過ごす時間はお子様にとって大切な思い出となるはずです。)(1100m)

聖マリアンナ医科大学病院 (診療部門も多く救急外来も受付しているので、ご家族の「いざ」と言う時にも安心です。)

病院

周辺環境:聖マリアンナ医科大学病院 (診療部門も多く救急外来も受付しているので、ご家族の「いざ」と言う時にも安心です。)(1400m)

お気軽にどうぞ!

お気に入りに追加済み

詳細情報

学区

菅生小学校

菅生中学校

用途地域

第一種中高層住居専用

地目

宅地

建ぺい率

60%

容積率

200%

駐車場

有り カースペース

接道

西 10.0m

権利

所有権

私道面積

無し

セットバック

無し

建物構造

木造

建物階数

2階

築年月

2003/10

入居日

即時

都市計画

市街化区域

取引態様

仲介

物件番号

A2227

設備

都市ガス、公営水道、公共下水、駐車場1台、緑豊かな住宅地、都市近郊、前道6m以上、市街地が近い、周辺交通量少なめ、スーパーが近い(10分以内)、2沿線以上利用可、小学校徒歩10分以内、保育施設・幼稚園5分以内、公園5分以内、コンビニ5分以内、都市ガス、システムキッチン、ガス3口、ユニットバス、追い焚き、トイレ2ヶ所、浴室に窓、暖房便座、バルコニー、ルーフバルコニー、南面バルコニー、内外装リフォーム、2階建、出窓、採光3面、全室2面採光、フローリング、全室フローリング、リビング階段、クローゼット、収納、床下収納、下駄箱、全居室収納、シャンプドレッサー付き、年内入居可、モニタ付きインターフォン、通風良好、陽当り良好

こだわり

運転ラクラク生活、LDKは1階に、2階建て住宅限定、スカイバルコニー、リビングイン階段、広々バルコニー、小学校10分以内、スーパー10分以内、コンビニ10分以内、公園10分以内、都市ガス、道路広々(5m以上)、日当たり良好

特記事項

 景観法:有/宅地造成工事規制区域:有/高度地区:有/準防火地域:有/日影制限:有/高さ限度:有/間取りSは納戸/駐車は車種による。 /≪内装リフォーム…2026年03月(トイレ、洗面所、壁、床、その他 白蟻点検) 外装リフォーム…2026年03月(外壁、屋根)≫

備考

宮前平駅 周辺は教育・お買い物施設などの利便施設が充実 新規内外装リフォーム ルーフバルコニー付き

この一戸建てを見ている人におすすめの物件

お気軽にどうぞ!

お気に入りに追加済み

loading...