府中市小柳町1丁目 新築一戸建て 4990万円 2号棟

物件種別

新築一戸建て

価格

4,990万円

所在地

府中市 小柳町1丁目 29-17

交通

京王線「多磨霊園」駅 徒歩 4 分

西武多摩川線「白糸台」駅 徒歩 12 分

土地面積

87.45㎡

建物面積

69.24㎡

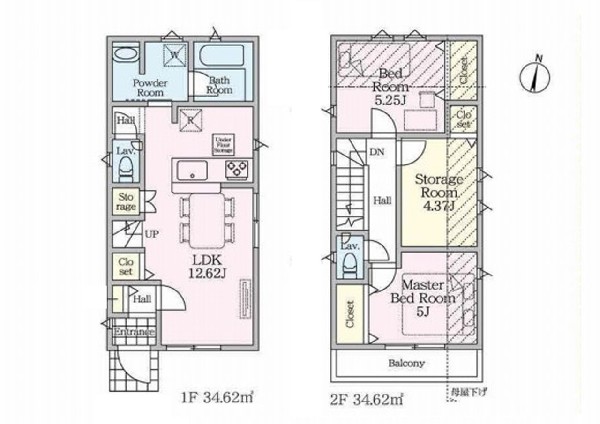
間取り

2SLDK

前回情報更新日 2026.03.27 | 次回情報更新予定日 2026.04.10

耐震に配慮された建物

道路広々(5m以上)

低層住居専用地域

1 | 3

この物件のココがオススメ!

京王線「多磨霊園」駅より4分の立地です。太陽光パネル搭載住宅。水廻りが集中した家事動線の良い間取り。

  • システムキッチン
  • カウンタキッチン
  • 対面キッチン
  • 追い焚き
  • 浴室乾燥機

お気軽にどうぞ!

お気に入りに追加済み

所在地マップ

間取り

お気軽にどうぞ!

お気に入りに追加済み

ローンシミュレーション

頭金・金利の場合

この物件の月々のお支払額

114,771

ボーナス時(年2回)お支払額

150,000

安全性をチェック! 年収に対する返済比率

- %

※会員登録し、詳細情報を記入されますと、全ての物件で自動的に金額が表示され、大変便利です。

※まだ会員登録をされていない方は、下記チェック欄をご記入ください。

※上記計算は物件価格 4,990万円+諸経費 8%込みの金額による結果となります。

※返済金額はあくまでも目安です。

お客様の条件からシミュレーションするには?

会員登録してローン情報を入力しておくと全ての物件に対してローンシミュレーションを表示できます。

周辺環境

府中市立小柳小学校

小学校

周辺環境:府中市立小柳小学校(950m)

府中市立府中第九中学校

中学校

周辺環境:府中市立府中第九中学校(450m)

小柳保育所

幼稚園・保育園

周辺環境:小柳保育所(500m)

共済会櫻井病院

病院

周辺環境:共済会櫻井病院(900m)

多磨霊園駅

周辺環境:多磨霊園駅(320m)

お気軽にどうぞ!

お気に入りに追加済み

詳細情報

学区

府中市立小柳小学校

府中市立府中第九中学校

用途地域

第一種低層住居専用

地目

宅地

建ぺい率

50%

容積率

80%

駐車場

有り カースペース

接道

西 5.0m

権利

所有権

私道面積

無し

セットバック

無し

建物構造

木造

建物階数

2階

築年月

2026/03

入居日

2026/04

建築確認番号

第R07SHC118398号

都市計画

市街化区域

取引態様

仲介

物件番号

T293710

設備

都市ガス、公営水道、公共下水、外壁サイディング、閑静な住宅地、地盤調査済、2沿線以上利用可、太陽光発電システム、対面キッチン、都市ガス、システムキッチン、カウンタキッチン、対面キッチン、追い焚き、浴室乾燥機、トイレ2ヶ所、浴室1坪以上、浴室に窓、南面バルコニー、2階建、太陽光発電システム、全室2面採光、リビング階段、床下収納、全居室収納、モニタ付きインターフォン、複層ガラス、通風良好、陽当り良好

こだわり

敷地延長(旗竿地)、耐震に配慮された建物、浴室換気乾燥暖房機、太陽光発電システム、運転ラクラク生活、2沿線利用であんしん通勤、LDKは1階に、2階建て住宅限定、リビングイン階段、対面キッチン、浴室1坪以上、有料道路インター2キロ以内、スーパー10分以内、コンビニ10分以内、小児科医院10分以内、保育園10分以内、幼稚園10分以内、公園10分以内、都市ガス、道路広々(5m以上)、道路と段差無し、低層住居専用地域

特記事項

 景観法:有/宅地造成工事規制区域:有/高度地区:有/準防火地域:有/日影制限:有/高さ限度:有。

備考

京王線「多磨霊園」駅より4分の立地です。太陽光パネル搭載住宅。水廻りが集中した家事動線の良い間取り。

この一戸建てを見ている人におすすめの物件

お気軽にどうぞ!

お気に入りに追加済み

loading...