値下げしました!今週末内覧会開催中!「港南台」駅徒歩13分 未入居中古一戸建て(4) 閑静な住宅地

物件種別

中古一戸建て

価格

5,180万円

所在地

横浜市港南区 港南台1丁目 27-6

交通

根岸線「港南台」駅 徒歩 13 分

京浜急行本線「上大岡」駅 バス停「日野」まで 徒歩 13 分 バス利用 10分

土地面積

86.23㎡

建物面積

99.02㎡

間取り

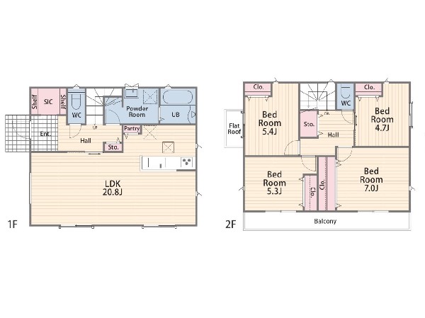
3SLDK

前回情報更新日 2026.04.02 | 次回情報更新予定日 2026.04.16

道路広々(5m以上)

1 | 18

この物件のココがオススメ!

JR根岸線「港南台」駅徒歩13分。LDKは対面キッチンでご家族との会話が弾みます。季節物や大物の収納に心強いロフト有。納戸も居室としてご利用可能。

  • システムキッチン
  • ガス3口
  • 対面キッチン
  • 食器洗い機付き
  • ユニットバス

お気軽にどうぞ!

お気に入りに追加済み

所在地マップ

間取り

お気軽にどうぞ!

お気に入りに追加済み

ローンシミュレーション

頭金・金利の場合

この物件の月々のお支払額

120,088

ボーナス時(年2回)お支払額

150,000

安全性をチェック! 年収に対する返済比率

- %

※会員登録し、詳細情報を記入されますと、全ての物件で自動的に金額が表示され、大変便利です。

※まだ会員登録をされていない方は、下記チェック欄をご記入ください。

※上記計算は物件価格 5,180万円+諸経費 8%込みの金額による結果となります。

※返済金額はあくまでも目安です。

お客様の条件からシミュレーションするには?

会員登録してローン情報を入力しておくと全ての物件に対してローンシミュレーションを表示できます。

周辺環境

JR港南台駅(JR港南台駅まで1200m)

周辺環境:JR港南台駅(JR港南台駅まで1200m)(1200m)

たまや港南台店(たまや港南台店まで1600m)

スーパー

周辺環境:たまや港南台店(たまや港南台店まで1600m)(1600m)

横浜市立港南台第一中学校(横浜市立港南台第一中学校まで1100m)

中学校

周辺環境:横浜市立港南台第一中学校(横浜市立港南台第一中学校まで1100m)(1100m)

横浜市立港南台第三小学校(横浜市立港南台第三小学校まで350m)

小学校

周辺環境:横浜市立港南台第三小学校(横浜市立港南台第三小学校まで350m)(350m)

港南台バーズ(港南台バーズまで1000m)

ショッピングセンター

周辺環境:港南台バーズ(港南台バーズまで1000m)(1000m)

港南台保育園(港南台保育園まで1000m)

幼稚園・保育園

周辺環境:港南台保育園(港南台保育園まで1000m)(1000m)

済生会横浜市南部病院(済生会横浜市南部病院まで1000m)

病院

周辺環境:済生会横浜市南部病院(済生会横浜市南部病院まで1000m)(1000m)

四ツ切公園(四ツ切公園まで290m)

公園

周辺環境:四ツ切公園(四ツ切公園まで290m)(290m)

春日野幼稚園(春日野幼稚園まで700m)

幼稚園・保育園

周辺環境:春日野幼稚園(春日野幼稚園まで700m)(700m)

お気軽にどうぞ!

お気に入りに追加済み

詳細情報

学区

港南台第三小学校

港南台第一中学校

用途地域

第一種低層住居専用

地目

宅地

建ぺい率

50%

容積率

80%

駐車場

有り カースペース

接道

南西 5.5m

権利

所有権

私道面積

有 136.35m² 1/9

セットバック

無し

建物構造

木造

建物階数

2階

築年月

2025/02

入居日

即時

建築確認番号

第24KAK建確01186号

都市計画

市街化区域

取引態様

仲介

物件番号

44792-4

設備

都市ガス、公営水道、公共下水、駐車場1台、緑豊かな住宅地、閑静な住宅地、開発分譲地内、2沿線以上利用可、総合病院徒歩10分以内、小学校徒歩10分以内、公園5分以内、対面キッチン、都市ガス、システムキッチン、ガス3口、対面キッチン、食器洗い機付き、浄水器、I型キッチン、ユニットバス、追い焚き、ウォシュレット、トイレ2ヶ所、浴室1坪以上、浴室に窓、暖房便座、バルコニー、南面バルコニー、2階建、ロフト、LDK15畳以上、採光2面、採光3面、フローリング、クローゼット、収納、床下収納、全居室収納、シャンプドレッサー付き、モニタ付きインターフォン、インターフォン、複層ガラス、24時間換気システム、建物10年保証

こだわり

食器洗い洗浄乾燥機、子供の多い街に住む、LDKは1階に、2階建て住宅限定、LDK15帖以上、対面キッチン、浴室1坪以上、ロフト・小屋裏収納、小学校10分以内、大規模公園10分以内、有料道路インター2キロ以内、コンビニ10分以内、総合病院10分以内、幼稚園10分以内、公園10分以内、都市ガス、5棟以上の分譲地、道路広々(5m以上)

特記事項

壁面後退:有/宅地造成工事規制区域:有/高度地区:有/準防火地域:有/日影制限:有/敷地面積最低限度:有/高さ限度:有/その他制限事項:建築基準法第22条区域 横浜市建築基準条例第3条による制限有 建物建築・再建築の際、深基礎、基礎杭、擁壁の補修・再構築、外壁後退等の対策が必要となる場合があります 第二用途地域:第一種住居地域(建ぺい率60%容積率200%)過小宅地。

備考

JR根岸線「港南台」駅徒歩13分。LDKは対面キッチンでご家族との会話が弾みます。季節物や大物の収納に心強いロフト有。納戸も居室としてご利用可能。

この一戸建てを見ている人におすすめの物件

お気軽にどうぞ!

お気に入りに追加済み

loading...