今週末モデルハウス見学会開催中!「上永谷」駅徒歩7分 新築一戸建て(B) ルーフバルコニー

物件種別

新築一戸建て

価格

5,980万円

所在地

横浜市港南区 丸山台2丁目 41-26

交通

ブルーライン「上永谷」駅 徒歩 7 分

根岸線「港南台」駅 バス停「永野新橋」まで 徒歩 6 分 バス利用 17分

土地面積

144.99㎡

建物面積

100.81㎡

間取り

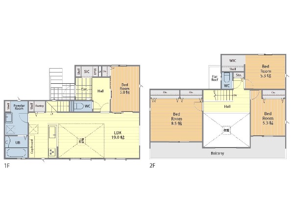
3SLDK

前回情報更新日 2025.11.20 | 次回情報更新予定日 2025.12.04

スカイバルコニー

断熱に配慮された建物

省エネに配慮された建物

道路広々(5m以上)

1 | 4

この物件のココがオススメ!

BL「上永谷」駅から徒歩7分。省エネ性能に優れたガス給湯器ecoジョーズ・食洗機・浴室乾燥機・ペアガラス他設備充実。日差しあふれるルーフバルコニー付。

  • システムキッチン
  • ガス3口
  • カウンタキッチン
  • 対面キッチン
  • 食器洗い機付き

お気軽にどうぞ!

お気に入りに追加済み

所在地マップ

間取り

お気軽にどうぞ!

お気に入りに追加済み

ローンシミュレーション

頭金・金利の場合

この物件の月々のお支払額

142,497

ボーナス時(年2回)お支払額

150,000

安全性をチェック! 年収に対する返済比率

- %

※会員登録し、詳細情報を記入されますと、全ての物件で自動的に金額が表示され、大変便利です。

※まだ会員登録をされていない方は、下記チェック欄をご記入ください。

※上記計算は物件価格 5,980万円+諸経費 8%込みの金額による結果となります。

※返済金額はあくまでも目安です。

お客様の条件からシミュレーションするには?

会員登録してローン情報を入力しておくと全ての物件に対してローンシミュレーションを表示できます。

周辺環境

イトーヨーカドー上永谷店(イトーヨーカドー上永谷店まで400m)

スーパー

周辺環境:イトーヨーカドー上永谷店(イトーヨーカドー上永谷店まで400m)(400m)

ビッグ・エー横浜丸山台店(ビッグ・エー横浜丸山台店まで600m)

スーパー

周辺環境:ビッグ・エー横浜丸山台店(ビッグ・エー横浜丸山台店まで600m)(600m)

横浜市立丸山台小学校(横浜市立丸山台小学校まで750m)

小学校

周辺環境:横浜市立丸山台小学校(横浜市立丸山台小学校まで750m)(750m)

横浜市立丸山台中学校(横浜市立丸山台中学校まで700m)

中学校

周辺環境:横浜市立丸山台中学校(横浜市立丸山台中学校まで700m)(700m)

港南ひまわり保育園(港南ひまわり保育園まで25m)

幼稚園・保育園

周辺環境:港南ひまわり保育園(港南ひまわり保育園まで25m)(25m)

ブルーライン上永谷駅(ブルーライン上永谷駅まで600m)

周辺環境:ブルーライン上永谷駅(ブルーライン上永谷駅まで600m)(600m)

梅田内科小児科(梅田内科小児科まで550m)

病院

周辺環境:梅田内科小児科(梅田内科小児科まで550m)(550m)

野庭ゆりのき公園(野庭ゆりのき公園まで550m)

公園

周辺環境:野庭ゆりのき公園(野庭ゆりのき公園まで550m)(550m)

六反田公園(六反田公園まで400m)

公園

周辺環境:六反田公園(六反田公園まで400m)(400m)

お気軽にどうぞ!

お気に入りに追加済み

詳細情報

学区

丸山台小学校

丸山台中学校

用途地域

準住居

地目

宅地

建ぺい率

60%

容積率

200%

駐車場

有り カースペース

接道

北西 36.0m

権利

所有権

私道面積

無し

セットバック

無し

建物構造

木造

建物階数

2階

築年月

2025/12

入居日

2026/01

建築確認番号

第24KAK建確03859号

都市計画

市街化区域

取引態様

仲介

物件番号

47077-B

設備

都市ガス、公営水道、公共下水、外壁サイディング、駐車場1台、緑豊かな住宅地、閑静な住宅地、前道6m以上、スーパーが近い(10分以内)、2沿線以上利用可、総合病院徒歩10分以内、小学校徒歩10分以内、中学校徒歩10分以内、保育施設・幼稚園5分以内、公園5分以内、コンビニ5分以内、対面キッチン、都市ガス、システムキッチン、ガス3口、カウンタキッチン、対面キッチン、食器洗い機付き、浄水器、I型キッチン、ユニットバス、追い焚き、浴室乾燥機、ウォシュレット、トイレ2ヶ所、浴室1坪以上、浴室に窓、浴室暖房、バルコニー、バルコニー2面、ルーフバルコニー、2階建、LDK15畳以上、省エネ給湯器、採光3面、全室2面採光、フローリング、リビング階段、クローゼット、収納、下駄箱、全居室収納、シャンプドレッサー付き、庭、フラット35Sに対応、モニタ付きインターフォン、複層ガラス、陽当り良好、24時間換気システム、建物10年保証

こだわり

大通り沿い、敷地延長(旗竿地)、断熱に配慮された建物、省エネに配慮された建物、食器洗い洗浄乾燥機、浴室換気乾燥暖房機、急行電車でスピード通勤、LDKは1階に、2階建て住宅限定、スカイバルコニー、リビングイン階段、LDK18帖以上、対面キッチン、小学校10分以内、スーパー10分以内、コンビニ10分以内、総合病院10分以内、小児科医院10分以内、保育園10分以内、公園10分以内、都市ガス、フラット35利用可、道路広々(5m以上)

特記事項

崖上につき建築制限:有/不整形地:有/宅地造成工事規制区域:有/高度地区:有/準防火地域:有/日影制限:有/一部都市計画道路:有/敷地内段差:有/その他制限事項:建物建築・再建築の際、深基礎、基礎杭、擁壁の補修・再構築、外壁後退等の対策が必要となる場合有。 傾斜地含 港南丸山台地区計画 丸山台まちづくりガイドライン 建物面積にペントハウス3.31平米含。

備考

BL「上永谷」駅から徒歩7分。省エネ性能に優れたガス給湯器ecoジョーズ・食洗機・浴室乾燥機・ペアガラス他設備充実。日差しあふれるルーフバルコニー付。

この一戸建てを見ている人におすすめの物件

お気軽にどうぞ!

お気に入りに追加済み

loading...