今週末モデルハウス見学会開催中!「井土ケ谷」駅徒歩15分 新築一戸建て 全居室6帖以上

物件種別

新築一戸建て

価格

5,280万円

所在地

横浜市南区 永田東2丁目 27-2

交通

京浜急行本線「井土ヶ谷」駅 徒歩 15 分

横須賀線「保土ヶ谷」駅 徒歩 22 分

土地面積

108.84㎡

建物面積

98.07㎡

間取り

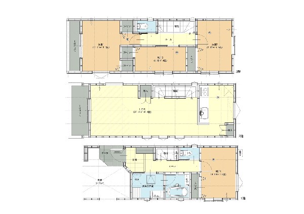
3LDK

前回情報更新日 2025.11.20 | 次回情報更新予定日 2025.12.04

スカイバルコニー

断熱に配慮された建物

省エネに配慮された建物

角地限定

1 | 9

この物件のココがオススメ!

京急「井土ケ谷」駅から徒歩15分。閑静な住環境。ご家族とのコミュニケーション場取りやすいリビングイン階段・対面キッチンにLDK。

  • システムキッチン
  • ガス3口
  • 対面キッチン
  • 食器洗い機付き
  • ユニットバス

お気軽にどうぞ!

お気に入りに追加済み

所在地マップ

間取り

お気軽にどうぞ!

お気に入りに追加済み

ローンシミュレーション

頭金・金利の場合

この物件の月々のお支払額

122,889

ボーナス時(年2回)お支払額

150,000

安全性をチェック! 年収に対する返済比率

- %

※会員登録し、詳細情報を記入されますと、全ての物件で自動的に金額が表示され、大変便利です。

※まだ会員登録をされていない方は、下記チェック欄をご記入ください。

※上記計算は物件価格 5,280万円+諸経費 8%込みの金額による結果となります。

※返済金額はあくまでも目安です。

お客様の条件からシミュレーションするには?

会員登録してローン情報を入力しておくと全ての物件に対してローンシミュレーションを表示できます。

周辺環境

サミットストア井土ヶ谷店(サミットストア井土ヶ谷店まで1200m)

スーパー

周辺環境:サミットストア井土ヶ谷店(サミットストア井土ヶ谷店まで1200m)(1200m)

マルエツ井土ヶ谷店(マルエツ井土ヶ谷店まで1500m)

スーパー

周辺環境:マルエツ井土ヶ谷店(マルエツ井土ヶ谷店まで1500m)(1500m)

エンゼルファミリー永田台店(エンゼルファミリー永田台店まで550m)

スーパー

周辺環境:エンゼルファミリー永田台店(エンゼルファミリー永田台店まで550m)(550m)

永田堂ノ谷第二公園(永田堂ノ谷第二公園まで600m)

公園

周辺環境:永田堂ノ谷第二公園(永田堂ノ谷第二公園まで600m)(600m)

永田みなみ台公園(永田みなみ台公園まで450m)

公園

周辺環境:永田みなみ台公園(永田みなみ台公園まで450m)(450m)

横浜市立永田小学校(横浜市立永田小学校まで300m)

小学校

周辺環境:横浜市立永田小学校(横浜市立永田小学校まで300m)(300m)

横浜市立永田中学校(横浜市立永田中学校まで450m)

中学校

周辺環境:横浜市立永田中学校(横浜市立永田中学校まで450m)(450m)

南聖心幼稚園(南聖心幼稚園まで600m)

幼稚園・保育園

周辺環境:南聖心幼稚園(南聖心幼稚園まで600m)(600m)

永田保育園(永田保育園まで450m)

幼稚園・保育園

周辺環境:永田保育園(永田保育園まで450m)(450m)

お気軽にどうぞ!

お気に入りに追加済み

詳細情報

学区

永田小学校

永田中学校

用途地域

第一種低層住居専用

地目

宅地

建ぺい率

50%

容積率

100%

駐車場

有り カースペース

接道

南西 4.5m 南東 4.5m

権利

所有権

私道面積

無し

セットバック

無し

建物構造

木造

建物階数

2階

築年月

2026/02

入居日

2026/03

建築確認番号

第25KAK建確01246号

都市計画

市街化区域

取引態様

仲介

物件番号

47284

設備

都市ガス、公営水道、公共下水、駐車場1台、緑豊かな住宅地、閑静な住宅地、角地、南側道路面す、隣家との間隔が大きい、周辺交通量少なめ、スーパーが近い(10分以内)、2沿線以上利用可、小学校徒歩10分以内、中学校徒歩10分以内、対面キッチン、都市ガス、システムキッチン、ガス3口、対面キッチン、食器洗い機付き、浄水器、I型キッチン、ユニットバス、浴室乾燥機、ウォシュレット、トイレ2ヶ所、浴室1坪以上、浴室に窓、バルコニー、ルーフバルコニー、南面バルコニー、2階建、LDK18畳以上、省エネ給湯器、南向き、東南向き、全室東南向き、フローリング、全室フローリング、リビング階段、クローゼット、ウォークインクローゼット、収納、床下収納、下駄箱、全居室収納、シャンプドレッサー付き、南庭、フラット35Sに対応、モニタ付きインターフォン、インターフォン、複層ガラス、通風良好、陽当り良好、24時間換気システム、建物10年保証

こだわり

断熱に配慮された建物、省エネに配慮された建物、食器洗い洗浄乾燥機、子供の多い街に住む、大人の二人暮らし、LDKは1階に、2階建て住宅限定、スカイバルコニー、LDK18帖以上、対面キッチン、小学校10分以内、保育園10分以内、幼稚園10分以内、公園10分以内、都市ガス、フラット35利用可、角地限定、南道路限定

特記事項

宅地造成工事規制区域:有/高度地区:有/準防火地域:有/日影制限:有/敷地面積最低限度:有/高さ限度:有/その他制限事項:建築基準法第22条区域 横浜市建築基準条例第3条による制限有 ※建物建築・再建築の際、深基礎、基礎杭、擁壁の補修・再構築、外壁後退等の対策が必要となる場合があります。 傾斜含 建物面積にペントハウス3.72平米含。

備考

京急「井土ケ谷」駅から徒歩15分。閑静な住環境。ご家族とのコミュニケーション場取りやすいリビングイン階段・対面キッチンにLDK。

この一戸建てを見ている人におすすめの物件

お気軽にどうぞ!

お気に入りに追加済み

loading...