建物完成しました! 今週末内覧会開催中!「中田」駅徒歩9分 新築一戸建て(2)カースペース2台

物件種別

新築一戸建て

価格

5,580万円

所在地

横浜市泉区 中田東4丁目 11-8

交通

ブルーライン「中田」駅 徒歩 9 分

ブルーライン「踊場」駅 徒歩 19 分

土地面積

101.79㎡

建物面積

96.26㎡

間取り

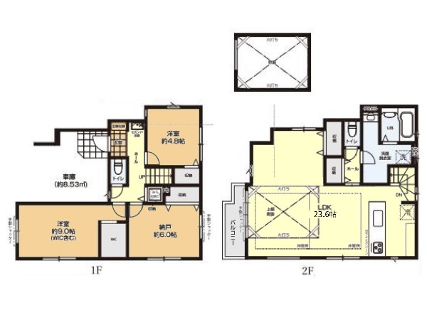
4LDK

前回情報更新日 2025.11.20 | 次回情報更新予定日 2025.12.04

シューズインクローク

省エネに配慮された建物

カースペース2台

1 | 2

この物件のココがオススメ!

地下鉄BL「中田」駅から徒歩9分。カースペース2台駐車可能。全居室2面採光。食洗機他、設備充実。WIC・SIC・パントリー完備。

  • システムキッチン
  • ガス3口
  • 対面キッチン
  • 食器洗い機付き
  • ユニットバス

お気軽にどうぞ!

お気に入りに追加済み

所在地マップ

間取り

お気軽にどうぞ!

お気に入りに追加済み

ローンシミュレーション

頭金・金利の場合

この物件の月々のお支払額

131,293

ボーナス時(年2回)お支払額

150,000

安全性をチェック! 年収に対する返済比率

- %

※会員登録し、詳細情報を記入されますと、全ての物件で自動的に金額が表示され、大変便利です。

※まだ会員登録をされていない方は、下記チェック欄をご記入ください。

※上記計算は物件価格 5,580万円+諸経費 8%込みの金額による結果となります。

※返済金額はあくまでも目安です。

お客様の条件からシミュレーションするには?

会員登録してローン情報を入力しておくと全ての物件に対してローンシミュレーションを表示できます。

お気軽にどうぞ!

お気に入りに追加済み

詳細情報

学区

東中田小学校

中田中学校

用途地域

第一種低層住居専用

地目

宅地

建ぺい率

50%

容積率

100%

駐車場

有り カースペース

接道

北西 4.0m

権利

所有権

私道面積

有 57.24m² 1/2

セットバック

無し

建物構造

木造

建物階数

2階

築年月

2025/09

入居日

即時

都市計画

市街化区域

取引態様

仲介

物件番号

47803-2

設備

都市ガス、公営水道、公共下水、駐車場2台以上、緑豊かな住宅地、閑静な住宅地、スーパーが近い(10分以内)、2沿線以上利用可、小学校徒歩10分以内、保育施設・幼稚園5分以内、公園5分以内、シューズインクローク、ウォークインクローゼット、対面キッチン、パントリー、都市ガス、システムキッチン、ガス3口、対面キッチン、食器洗い機付き、I型キッチン、パントリー(食器・食品の収納庫)、ユニットバス、追い焚き、浴室乾燥機、ウォシュレット、トイレ2ヶ所、浴室1坪以上、浴室に窓、暖房便座、浴室暖房、バルコニー、南面バルコニー、2階建、LDK18畳以上、全室2面採光、フローリング、リビング階段、クローゼット、ウォークインクローゼット、収納、床下収納、下駄箱、全居室収納、シューズインクローク、シャンプドレッサー付き、フラット35Sに対応、モニタ付きインターフォン、24時間換気システム、建物10年保証

こだわり

省エネに配慮された建物、食器洗い洗浄乾燥機、浴室換気乾燥暖房機、大人の二人暮らし、LDKは1階に、2階建て住宅限定、シューズインクローク、ウォークインクローゼット、リビングイン階段、LDK18帖以上、対面キッチン、浴室1坪以上、パントリー、小学校10分以内、スーパー10分以内、保育園10分以内、公園10分以内、都市ガス、カースペース2台

特記事項

その他制限事項:建築基準法第22条区域 /宅地造成工事規制区域:有/高度地区:有/準防火地域:有/日影制限:有/敷地面積最低限度:有/高さ限度:有。

備考

地下鉄BL「中田」駅から徒歩9分。カースペース2台駐車可能。全居室2面採光。食洗機他、設備充実。WIC・SIC・パントリー完備。

この一戸建てを見ている人におすすめの物件

お気軽にどうぞ!

お気に入りに追加済み

loading...