横浜市青葉区みたけ台 新築一戸建 6480万円 1号棟

物件種別

新築一戸建て

価格

6,480万円

所在地

横浜市青葉区 みたけ台 27-11

交通

田園都市線「青葉台」駅 徒歩 25 分

田園都市線「藤が丘」駅 バス停「みたけ台小学校第二」まで 徒歩 3 分 バス利用 16分

土地面積

139.18㎡

建物面積

108.54㎡

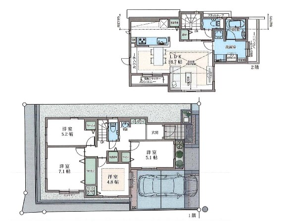
間取り

4LDK

前回情報更新日 2025.10.02 | 次回情報更新予定日 2025.10.16

省エネに配慮された建物

長期優良住宅

カースペース2台

角地限定

1 | 22

この物件のココがオススメ!

閑静な住宅街に位置した2階建て住宅 並列駐車2台可能 建物はLDK 4部屋あり豊富な収納スペース完備

  • システムキッチン
  • ガス3口
  • カウンタキッチン
  • 対面キッチン
  • 食器洗い機付き

お気軽にどうぞ!

お気に入りに追加済み

所在地マップ

間取り

お気軽にどうぞ!

お気に入りに追加済み

ローンシミュレーション

頭金・金利の場合

この物件の月々のお支払額

156,503

ボーナス時(年2回)お支払額

150,000

安全性をチェック! 年収に対する返済比率

- %

※会員登録し、詳細情報を記入されますと、全ての物件で自動的に金額が表示され、大変便利です。

※まだ会員登録をされていない方は、下記チェック欄をご記入ください。

※上記計算は物件価格 6,480万円+諸経費 8%込みの金額による結果となります。

※返済金額はあくまでも目安です。

お客様の条件からシミュレーションするには?

会員登録してローン情報を入力しておくと全ての物件に対してローンシミュレーションを表示できます。

周辺環境

青葉台東急スクエア(「きょうも、あしたも、あさっても。」をテーマに地域のランドマークとして皆さまに毎日お越しいただける空間を創造していきます。)

ショッピングセンター

周辺環境:青葉台東急スクエア(「きょうも、あしたも、あさっても。」をテーマに地域のランドマークとして皆さまに毎日お越しいただける空間を創造していきます。)(1900m)

青葉区役所(引越しや出産、検診、保育園の入園、年金、税金、各種手続き等々、節目で必ず行く必要がある区役所。)

役所

周辺環境:青葉区役所(引越しや出産、検診、保育園の入園、年金、税金、各種手続き等々、節目で必ず行く必要がある区役所。)(1900m)

東急ストアたちばな台店(営業時間は9時~22時までと幅広い時間帯に利用することができ、お客様の毎日の生活に密着してお役に立ちます。)

スーパー

周辺環境:東急ストアたちばな台店(営業時間は9時~22時までと幅広い時間帯に利用することができ、お客様の毎日の生活に密着してお役に立ちます。)(1000m)

いなげや横浜桂台店( 営業時間10~20時(通常営業時間) 駐車場82台 自転車や車で立ち寄りやすい駐車場完備のスーパーです。)

スーパー

周辺環境:いなげや横浜桂台店( 営業時間10~20時(通常営業時間) 駐車場82台 自転車や車で立ち寄りやすい駐車場完備のスーパーです。)(1900m)

みたけ台公園(段差のある地形をそのまま活かして整備された公園で、高台になっている公園の端からは鶴見川の流れる風景を眺めることが出来ます。)

公園

周辺環境:みたけ台公園(段差のある地形をそのまま活かして整備された公園で、高台になっている公園の端からは鶴見川の流れる風景を眺めることが出来ます。)(400m)

たちばな台病院(良質な医療を安全にまごころをこめて提供します。地域の病院として24時間365日、他の医療機関とも連携し、包括的な医療を提供します。)

病院

周辺環境:たちばな台病院(良質な医療を安全にまごころをこめて提供します。地域の病院として24時間365日、他の医療機関とも連携し、包括的な医療を提供します。)(1000m)

太陽の子桜台保育園(横浜市の東急田園都市線「青葉台駅」より徒歩12分の認可保育園です。)

幼稚園・保育園

周辺環境:太陽の子桜台保育園(横浜市の東急田園都市線「青葉台駅」より徒歩12分の認可保育園です。)(1200m)

みたけ台小学校(昭和52年創立。横浜を愛し、公共の精神を尊び、積極的に社会に関わり、貢献する子どもを育みます。)

小学校

周辺環境:みたけ台小学校(昭和52年創立。横浜を愛し、公共の精神を尊び、積極的に社会に関わり、貢献する子どもを育みます。)(450m)

みたけ台中学校(学校教育目標は、めざします、いきいきと楽しく、笑顔あふれる学舎(まなびや)を!)

中学校

周辺環境:みたけ台中学校(学校教育目標は、めざします、いきいきと楽しく、笑顔あふれる学舎(まなびや)を!)(220m)

お気軽にどうぞ!

お気に入りに追加済み

詳細情報

学区

みたけ台小学校

みたけ台中学校

用途地域

第一種低層住居専用

地目

宅地

建ぺい率

40%

容積率

80%

駐車場

有り カースペース

接道

西 6.5m6.5m

権利

所有権

私道面積

無し

セットバック

無し

建物構造

木造

建物階数

2階

築年月

2025/04

入居日

即時

都市計画

市街化区域

取引態様

仲介

物件番号

A1488-1

設備

都市ガス、公営水道、公共下水、設計住宅性能評価付、シックハウス対策、建設住宅性能評価書(新築時)、BELS/省エネ基準適合認定書あり、駐車場2台以上、整形地、緑豊かな住宅地、閑静な住宅地、角地、都市近郊、地盤調査済、前道6m以上、市街地が近い、小学校徒歩10分以内、中学校徒歩10分以内、公園5分以内、コンビニ5分以内、ウォークインクローゼット、対面キッチン、都市ガス、整形地、システムキッチン、ガス3口、カウンタキッチン、対面キッチン、食器洗い機付き、浄水器、ユニットバス、追い焚き、浴室乾燥機、ウォシュレット、オートバス付き、トイレ2ヶ所、浴室1坪以上、浴室に窓、暖房便座、浴室暖房、バルコニー、2階建、LDK18畳以上、人感照明センサー、採光3面、フローリング、全室フローリング、クローゼット、ウォークインクローゼット、収納、床下収納、下駄箱、全居室収納、シャンプドレッサー付き、庭、フラット35Sに対応、モニタ付きインターフォン、複層ガラス、火災警報器(報知機)、セキュリティ充実、通風良好、陽当り良好、24時間換気システム、建物10年保証

こだわり

省エネに配慮された建物、長期優良住宅、食器洗い洗浄乾燥機、浴室換気乾燥暖房機、運転ラクラク生活、広い庭のある暮らし、LDKは1階に、2階建て住宅限定、ウォークインクローゼット、LDK18帖以上、広々バルコニー、対面キッチン、浴室1坪以上、小学校10分以内、有料道路インター2キロ以内、コンビニ10分以内、小児科医院10分以内、保育園10分以内、公園10分以内、都市ガス、フラット35利用可、カースペース2台、隣家との間隔たっぷり、角地限定、道路広々(5m以上)、日当たり良好、整形地、低層住居専用地域

特記事項

 壁面後退:有/宅地造成工事規制区域:有/高度地区:有/日影制限:有/敷地面積最低限度:有/高さ限度:有/緑化地域/建築基準法22条による区域。

備考

閑静な住宅街に位置した2階建て住宅 並列駐車2台可能 建物はLDK 4部屋あり豊富な収納スペース完備

この一戸建てを見ている人におすすめの物件

お気軽にどうぞ!

お気に入りに追加済み

loading...