川崎市幸区南加瀬4丁目 建築条件無売地 3920万円

物件種別

土地・売り地

価格

3,920万円

所在地

川崎市幸区 南加瀬4丁目 15-18

交通

東急東横線「日吉」駅 バス停「江川町」まで 徒歩 2 分 バス利用 7分

横須賀線「新川崎」駅 バス停「一本橋」まで 徒歩 2 分 バス利用 10分

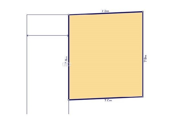
土地面積

56.01㎡

前回情報更新日 2026.04.03 | 次回情報更新予定日 2026.04.17

建築前自由設計

1 | 5

この物件のココがオススメ!

建築条件はございませんので、お好きなハウスメーカーで建築できます。バス停から2分、アクセス良好です。

  • 都市ガス
  • 公共下水
  • 整形地
  • 閑静な住宅地
  • 平坦地

お気軽にどうぞ!

お気に入りに追加済み

所在地マップ

お気軽にどうぞ!

お気に入りに追加済み

ローンシミュレーション

頭金・金利の場合

この物件の月々のお支払額

84,788

ボーナス時(年2回)お支払額

150,000

安全性をチェック! 年収に対する返済比率

- %

※会員登録し、詳細情報を記入されますと、全ての物件で自動的に金額が表示され、大変便利です。

※まだ会員登録をされていない方は、下記チェック欄をご記入ください。

※上記計算は物件価格 3,920万円+諸経費 8%込みの金額による結果となります。

※返済金額はあくまでも目安です。

お客様の条件からシミュレーションするには?

会員登録してローン情報を入力しておくと全ての物件に対してローンシミュレーションを表示できます。

周辺環境

日吉駅(東横線通勤特急・急行停車駅、グリーンライン始発駅。「渋谷」駅へ約20分、「横浜」駅へ約12分と、好アクセス駅です。)

周辺環境:日吉駅(東横線通勤特急・急行停車駅、グリーンライン始発駅。「渋谷」駅へ約20分、「横浜」駅へ約12分と、好アクセス駅です。)(2000m)

新川崎駅(横須賀線と湘南新宿ラインが乗り入れる、利便性の高い駅です。生活に必要な施設も充実しており、近年住みよい街として人気が高まっています。)

周辺環境:新川崎駅(横須賀線と湘南新宿ラインが乗り入れる、利便性の高い駅です。生活に必要な施設も充実しており、近年住みよい街として人気が高まっています。)(1800m)

サミット南加瀬(パシオス)(首都圏でスーパーマーケットを展開するサミット。2階には衣料品のパシオス、ダイソーがあります。 )

スーパー

周辺環境:サミット南加瀬(パシオス)(首都圏でスーパーマーケットを展開するサミット。2階には衣料品のパシオス、ダイソーがあります。 )(850m)

南加瀬中学校(成長の過程でより濃い時間を過ごす3年間。ここで過ごす時間は、お子様にとって、とても大切な思い出となるはずです。)

中学校

周辺環境:南加瀬中学校(成長の過程でより濃い時間を過ごす3年間。ここで過ごす時間は、お子様にとって、とても大切な思い出となるはずです。)(450m)

南加瀬小学校(教育目標は、「心豊かでたくましく実践力のある子ども」。一人一人の子供が楽しく、安全で安心して活動できる学校をめざしています。)

小学校

周辺環境:南加瀬小学校(教育目標は、「心豊かでたくましく実践力のある子ども」。一人一人の子供が楽しく、安全で安心して活動できる学校をめざしています。)(400m)

夢見ヶ崎公園(隣接する動物公園は入園無料。シマウマやシカ、レッサーパンダがいるほか、たくさんの鳥類がいて、ペンギンの泳ぐ池もあります。)

公園

周辺環境:夢見ヶ崎公園(隣接する動物公園は入園無料。シマウマやシカ、レッサーパンダがいるほか、たくさんの鳥類がいて、ペンギンの泳ぐ池もあります。)(850m)

すき家(豊富なサイズ、メニュー、食の安全にこだわります。)

飲食店

周辺環境:すき家(豊富なサイズ、メニュー、食の安全にこだわります。)(240m)

南加瀬五反公園( 遊具もある広めの公園。放課後や休日は多くの子供たちでにぎわいを見せています。)

公園

周辺環境:南加瀬五反公園( 遊具もある広めの公園。放課後や休日は多くの子供たちでにぎわいを見せています。)(500m)

南加瀬第一公園(近隣には、公園もあり、青空の下で駆け回ったり、遊具で遊んだり、思い思いの遊びができます。)

公園

周辺環境:南加瀬第一公園(近隣には、公園もあり、青空の下で駆け回ったり、遊具で遊んだり、思い思いの遊びができます。)(750m)

お気軽にどうぞ!

お気に入りに追加済み

詳細情報

学区

南加瀬小学校

南加瀬中学校

用途地域

第一種住居

地目

宅地

建ぺい率

60%

容積率

160%

駐車場

無し

接道

西 4.0m

権利

所有権

私道面積

無し

セットバック

無し

入居日

相談

都市計画

市街化区域

取引態様

仲介

物件番号

A2180

設備

都市ガス、公共下水、整形地、閑静な住宅地、平坦地、都市近郊、市街地が近い、周辺交通量少なめ、スーパーが近い(10分以内)、駅まで平坦、2沿線以上利用可、小学校徒歩10分以内、中学校徒歩10分以内、保育施設・幼稚園5分以内、公園5分以内、コンビニ5分以内、都市ガス

こだわり

道路狭い(4メートル未満)、外食を楽しめる生活、駅まで平坦ラクラク通勤、2沿線利用であんしん通勤、子供の多い街に住む、建築前自由設計、小学校10分以内、スーパー10分以内、コンビニ10分以内、小児科医院10分以内、保育園10分以内、幼稚園10分以内、公園10分以内、都市ガス、道路と段差無し、3階建て以上建築可能地域

特記事項

 景観法:有/宅地造成工事規制区域:有/高度地区:有/準防火地域:有/日影制限:有/高さ限度:有/私道持分有。 建築条件:なし

備考

建築条件はございませんので、お好きなハウスメーカーで建築できます。バス停から2分、アクセス良好です。

お気軽にどうぞ!

お気に入りに追加済み

loading...