今週末モデルハウス見学会開催中!「山手」駅徒歩8分 新築一戸建て(B) 地下車庫有り

物件種別

新築一戸建て

価格

6,980万円

所在地

横浜市中区 本牧緑ケ丘 2

交通

根岸線「山手」駅 徒歩 8 分

みなとみらい線「元町・中華街」駅 徒歩 27 分

土地面積

166.55㎡

建物面積

98.33㎡

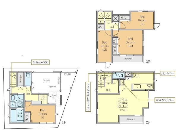
間取り

4LDK

前回情報更新日 2026.04.30 | 次回情報更新予定日 2026.05.14

シューズインクローク

断熱に配慮された建物

省エネに配慮された建物

道路広々(5m以上)

1 | 6

この物件のココがオススメ!

JR根岸線「山手」駅から徒歩8分。愛車にやさしい地下車庫。約19帖LDKは対面キッチン・リビングイン階段。食洗機・ペアガラス他、設備充実。

  • システムキッチン
  • ガス3口
  • 対面キッチン
  • 食器洗い機付き
  • ユニットバス

お気軽にどうぞ!

お気に入りに追加済み

所在地マップ

間取り

お気軽にどうぞ!

お気に入りに追加済み

ローンシミュレーション

頭金・金利の場合

この物件の月々のお支払額

170,508

ボーナス時(年2回)お支払額

150,000

安全性をチェック! 年収に対する返済比率

- %

※会員登録し、詳細情報を記入されますと、全ての物件で自動的に金額が表示され、大変便利です。

※まだ会員登録をされていない方は、下記チェック欄をご記入ください。

※上記計算は物件価格 6,980万円+諸経費 8%込みの金額による結果となります。

※返済金額はあくまでも目安です。

お客様の条件からシミュレーションするには?

会員登録してローン情報を入力しておくと全ての物件に対してローンシミュレーションを表示できます。

周辺環境

イトーヨーカドー本牧店(イトーヨーカドー本牧店まで2000m)

スーパー

周辺環境:イトーヨーカドー本牧店(イトーヨーカドー本牧店まで2000m)(2000m)

スーパー・トップ山手店(スーパー・トップ山手店まで650m)

スーパー

周辺環境:スーパー・トップ山手店(スーパー・トップ山手店まで650m)(650m)

本牧緑ケ丘公園(本牧緑ケ丘公園まで270m)

公園

周辺環境:本牧緑ケ丘公園(本牧緑ケ丘公園まで270m)(270m)

横浜市立大鳥小学校(横浜市立大鳥小学校まで850m)

小学校

周辺環境:横浜市立大鳥小学校(横浜市立大鳥小学校まで850m)(850m)

さゆり幼稚園(さゆり幼稚園まで1700m)

幼稚園・保育園

周辺環境:さゆり幼稚園(さゆり幼稚園まで1700m)(1700m)

横浜市立本牧中学校(横浜市立本牧中学校まで1000m)

中学校

周辺環境:横浜市立本牧中学校(横浜市立本牧中学校まで1000m)(1000m)

のぞみ山手駅前保育園(のぞみ山手駅前保育園まで650m)

幼稚園・保育園

周辺環境:のぞみ山手駅前保育園(のぞみ山手駅前保育園まで650m)(650m)

JR山手駅(JR山手駅まで600m)

周辺環境:JR山手駅(JR山手駅まで600m)(600m)

横浜市立みなと赤十字病院

病院

周辺環境:横浜市立みなと赤十字病院(2500m)

お気軽にどうぞ!

お気に入りに追加済み

詳細情報

学区

大島小学校

本牧中学校

用途地域

第一種低層住居専用

地目

宅地

建ぺい率

60%

容積率

100%

駐車場

有り 地下車庫 駐車場面積:26.56㎡

接道

5.2m

権利

所有権

私道面積

無し

セットバック

無し

建物構造

木造

建物階数

2階

築年月

2026/07

入居日

2026/08

建築確認番号

第25KAK建確00297号

都市計画

市街化区域

取引態様

仲介

物件番号

47069-B

設備

都市ガス、公営水道、公共下水、駐車場1台、緑豊かな住宅地、閑静な住宅地、2沿線以上利用可、小学校徒歩10分以内、公園5分以内、シューズインクローク、対面キッチン、都市ガス、システムキッチン、ガス3口、対面キッチン、食器洗い機付き、浄水器、I型キッチン、ユニットバス、追い焚き、浴室乾燥機、ウォシュレット、トイレ2ヶ所、浴室に窓、暖房便座、浴室暖房、バルコニー、南面バルコニー、2階建、LDK18畳以上、省エネ給湯器、全室2面採光、全室フローリング、リビング階段、クローゼット、収納、下駄箱、全居室収納、シューズインクローク、シャンプドレッサー付き、フラット35Sに対応、モニタ付きインターフォン、複層ガラス、全居室複層ガラスか複層サッシ、24時間換気システム、建物10年保証

こだわり

断熱に配慮された建物、省エネに配慮された建物、食器洗い洗浄乾燥機、浴室換気乾燥暖房機、外食を楽しめる生活、大人の二人暮らし、おしゃれイメージな街に住む、LDKは1階に、2階建て住宅限定、シューズインクローク、リビングイン階段、LDK18帖以上、対面キッチン、小学校10分以内、保育園10分以内、公園10分以内、都市ガス、道路広々(5m以上)

特記事項

崖下につき建築制限:有/崖上につき建築制限:有/不整形地:有/急傾斜地崩壊危険区域:有/高度地区:有/準防火地域:有/敷地面積最低限度:有/高さ限度:有/その他制限事項:建築基準法第22条区域 建物建築・再建築の際、深基礎、基礎杭、擁壁の補修・再構築、外壁後退等の対策が必要となる場合有。建物建築・再建築の際、防護壁の設置、高基礎、外壁後退等の対策が必要となる場合有。傾斜地含 土砂災害警戒区域及び土砂災害特別警戒区域 不燃化推進地域 敷地面積に傾斜地部分:69.99平米含 別途地下車庫部分26.56平米有り。

備考

JR根岸線「山手」駅から徒歩8分。愛車にやさしい地下車庫。約19帖LDKは対面キッチン・リビングイン階段。食洗機・ペアガラス他、設備充実。

この一戸建てを見ている人におすすめの物件

お気軽にどうぞ!

お気に入りに追加済み

loading...