横浜市緑区新治町 中古一戸建 2980万円

物件種別

中古一戸建て

価格

2,980万円

所在地

横浜市緑区 新治町 725-24

交通

横浜線「十日市場」駅 徒歩 15 分

田園都市線「青葉台」駅 バス停「杉沢」まで 徒歩 4 分 バス利用 22分

土地面積

73.17㎡

建物面積

52.16㎡

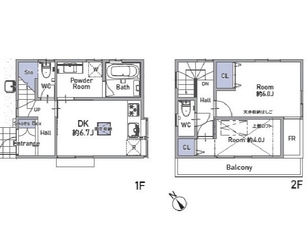
間取り

2DK

前回情報更新日 2025.12.25 | 次回情報更新予定日 2026.01.08

低層住居専用地域

1 | 21

この物件のココがオススメ!

緑豊かな閑静な住宅街 水回り集約で家事効率UP! ロフト付き 全室収納 南西バルコニーで日当たり良好

  • システムキッチン
  • シャンプドレッサー付き
  • トイレ2ヶ所
  • ロフト
  • 出窓

お気軽にどうぞ!

お気に入りに追加済み

所在地マップ

間取り

お気軽にどうぞ!

お気に入りに追加済み

ローンシミュレーション

頭金・金利の場合

この物件の月々のお支払額

58,463

ボーナス時(年2回)お支払額

150,000

安全性をチェック! 年収に対する返済比率

- %

※会員登録し、詳細情報を記入されますと、全ての物件で自動的に金額が表示され、大変便利です。

※まだ会員登録をされていない方は、下記チェック欄をご記入ください。

※上記計算は物件価格 2,980万円+諸経費 8%込みの金額による結果となります。

※返済金額はあくまでも目安です。

お客様の条件からシミュレーションするには?

会員登録してローン情報を入力しておくと全ての物件に対してローンシミュレーションを表示できます。

周辺環境

セブンイレブン横浜十日市場東店(酒たばこ取扱い有。無料Wi-Fi有。商品を注文し受取り、配達可能なサービス、セブンミール取扱有。)

コンビニ

周辺環境:セブンイレブン横浜十日市場東店(酒たばこ取扱い有。無料Wi-Fi有。商品を注文し受取り、配達可能なサービス、セブンミール取扱有。)(650m)

三保公園(桜、イチョウ、ケヤキがあり、季節を感じられます。滑り台やブランコ、広場がありお子様も楽しめそう。)

公園

周辺環境:三保公園(桜、イチョウ、ケヤキがあり、季節を感じられます。滑り台やブランコ、広場がありお子様も楽しめそう。)(600m)

ダイエー十日市場店(食品の他に日用品や衣料品も取扱う大型スーパー。ベーカリー、100円ショップ有。駐車場は170台可能。)

スーパー

周辺環境:ダイエー十日市場店(食品の他に日用品や衣料品も取扱う大型スーパー。ベーカリー、100円ショップ有。駐車場は170台可能。)(1000m)

みほ幼稚園(漢字絵本、時計、百玉算盤などに早くから親しみ子供の可能性を伸ばす。音楽発表会は本格的な楽器を使う。)

幼稚園・保育園

周辺環境:みほ幼稚園(漢字絵本、時計、百玉算盤などに早くから親しみ子供の可能性を伸ばす。音楽発表会は本格的な楽器を使う。)(1300m)

新治小学校(明治22年に創立された歴史ある小学校。令和2年に新校舎が完成、大規模修繕工事も行い綺麗な校舎。)

小学校

周辺環境:新治小学校(明治22年に創立された歴史ある小学校。令和2年に新校舎が完成、大規模修繕工事も行い綺麗な校舎。)(230m)

クリエイト十日市場店(医薬品、化粧品、日用品、ベビー用品はもちろん、野菜、精肉、冷凍食品、酒、たばこも取扱う。駐車場有。)

ドラッグストア

周辺環境:クリエイト十日市場店(医薬品、化粧品、日用品、ベビー用品はもちろん、野菜、精肉、冷凍食品、酒、たばこも取扱う。駐車場有。)(800m)

みどりさくら保育園(子供の人格を尊重し、気持ちを受け止めることを心がける保育園。栽培や料理を通して食への興味を育てる。)

幼稚園・保育園

周辺環境:みどりさくら保育園(子供の人格を尊重し、気持ちを受け止めることを心がける保育園。栽培や料理を通して食への興味を育てる。)(700m)

横浜市立緑図書館(絵本読み聞かせや紙芝居上演等の催しが定期的に行われる。絵本コーナーは靴を脱いで入りゆっくり選べる。)

図書館

周辺環境:横浜市立緑図書館(絵本読み聞かせや紙芝居上演等の催しが定期的に行われる。絵本コーナーは靴を脱いで入りゆっくり選べる。)(950m)

マクドナルド十日市場店(定番のハンバーガーショップ。ハッピーセットやマックカフェも人気。24時間営業。ドライブスルー有。)

飲食店

周辺環境:マクドナルド十日市場店(定番のハンバーガーショップ。ハッピーセットやマックカフェも人気。24時間営業。ドライブスルー有。)(1400m)

お気軽にどうぞ!

お気に入りに追加済み

詳細情報

学区

新治小学校

十日市場中学校

用途地域

第一種低層住居専用

地目

宅地

建ぺい率

40%

容積率

80%

駐車場

有り カースペース

接道

北西 4.0m

権利

所有権

私道面積

無し

セットバック

無し

建物構造

木造

建物階数

2階

築年月

2007/10

入居日

即時

都市計画

市街化区域

取引態様

仲介

物件番号

P1041

設備

公営水道、公共下水、駐車場1台、整形地、緑豊かな住宅地、閑静な住宅地、都市近郊、市街地が近い、隣家との間隔が大きい、周辺交通量少なめ、スーパーが近い(10分以内)、始発駅、2沿線以上利用可、小学校徒歩10分以内、公園5分以内、システムキッチン、I型キッチン、トイレ2ヶ所、浴室1坪以上、浴室に窓、浴室暖房、バルコニー、南面バルコニー、内装リフォーム、2階建、ロフト、出窓、採光2面、南西向き、フローリング、クローゼット、収納、床下収納、下駄箱、全居室収納、シャンプドレッサー付き、年内入居可、陽当り良好、整形地

こだわり

道路狭い(4メートル未満)、浴室換気乾燥暖房機、LDKは1階に、2階建て住宅限定、浴室1坪以上、ロフト・小屋裏収納、小学校10分以内、コンビニ10分以内、保育園10分以内、幼稚園10分以内、公園10分以内、整形地、道路と段差無し、低層住居専用地域

特記事項

 壁面後退:有/宅地造成工事規制区域:有/高度地区:有/日影制限:有/敷地面積最低限度:有/高さ限度:有/緑化地域。 /内装リフォーム…2025年10月(キッチン、トイレ、洗面所、壁、建具)

備考

緑豊かな閑静な住宅街 水回り集約で家事効率UP! ロフト付き 全室収納 南西バルコニーで日当たり良好

この一戸建てを見ている人におすすめの物件

お気軽にどうぞ!

お気に入りに追加済み

loading...